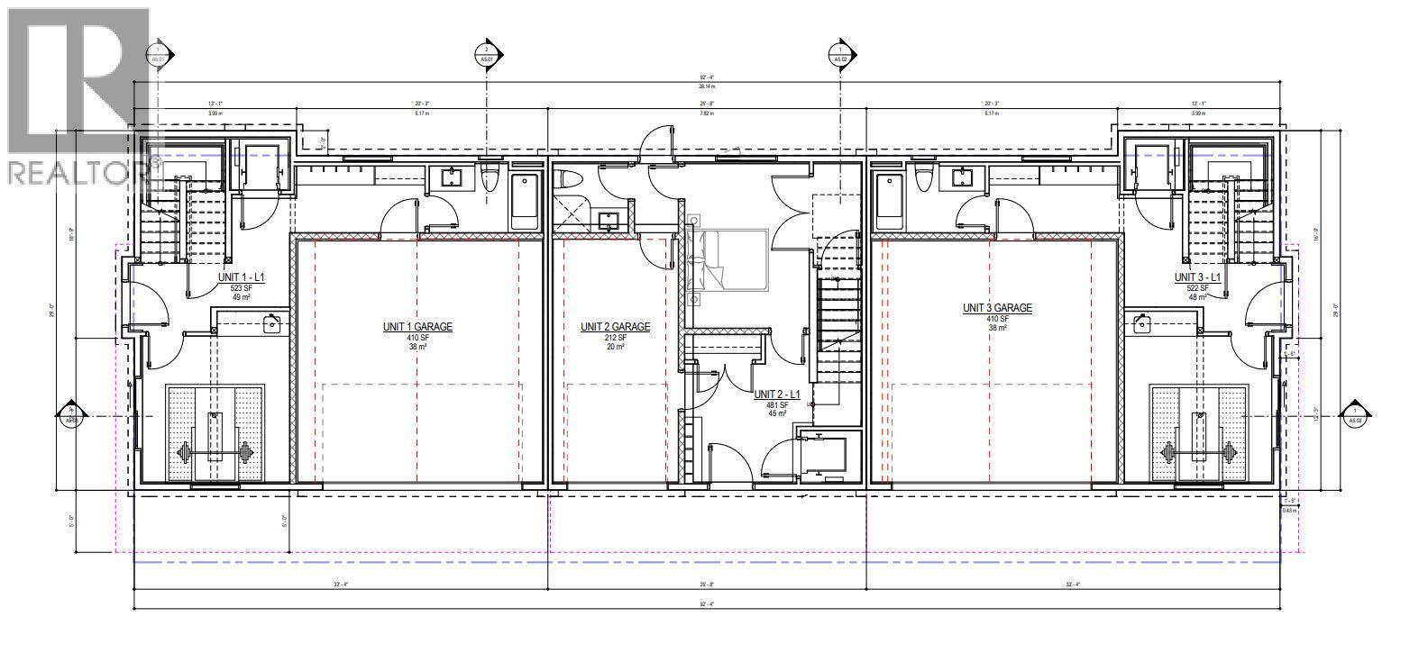
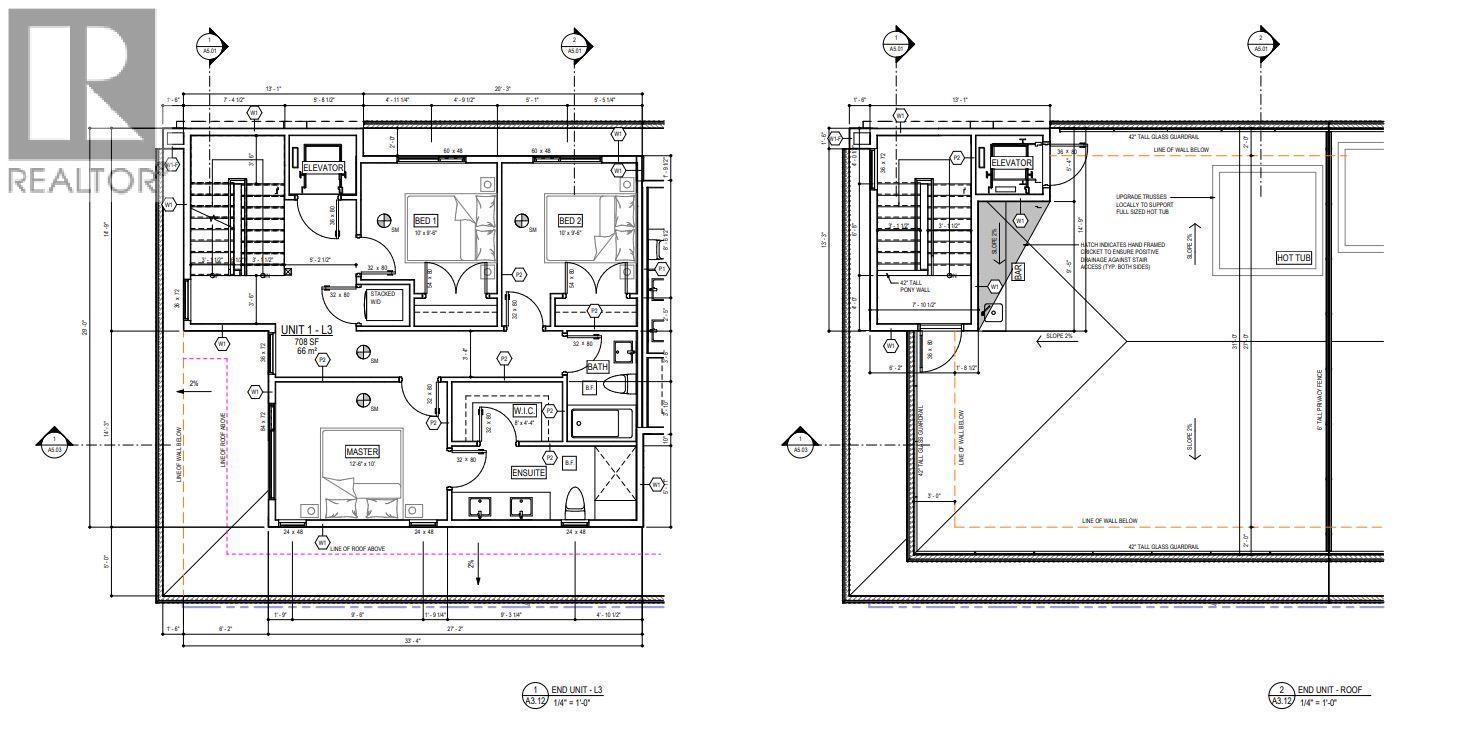
Maison À vendre à North Mission - Crawford, Kelowna, Colombie-Britannique
1 799 000 $ ÉvaluationExpressMC: Non disponible5 Chambres
5 Salles de bain
-
Détails
-
Carte
-
Données démographiques
-
Vue de la rue
-
Itinéraire
-
Publicité

























