Maison À vendre à Belgo - Black Mountain, Kelowna, Colombie-Britannique
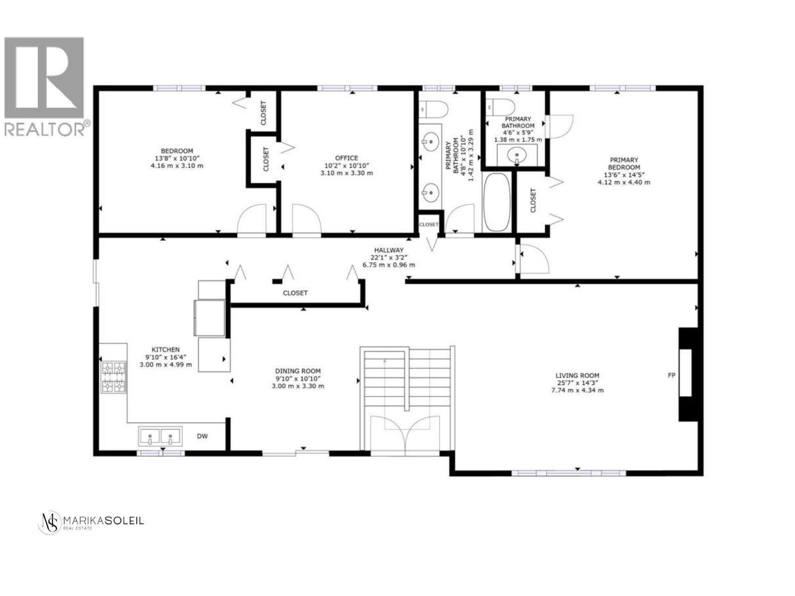
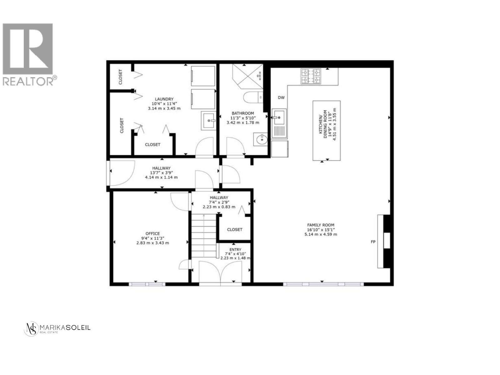
849 900 $ ÉvaluationExpressMC: Non disponible4 Chambres
3 Salles de bain
-
Détails
-
Carte
-
Données démographiques
-
Vue de la rue
-
Itinéraire
-
Publicité








































