Maison À vendre à Southwest Mission, Kelowna, Colombie-Britannique
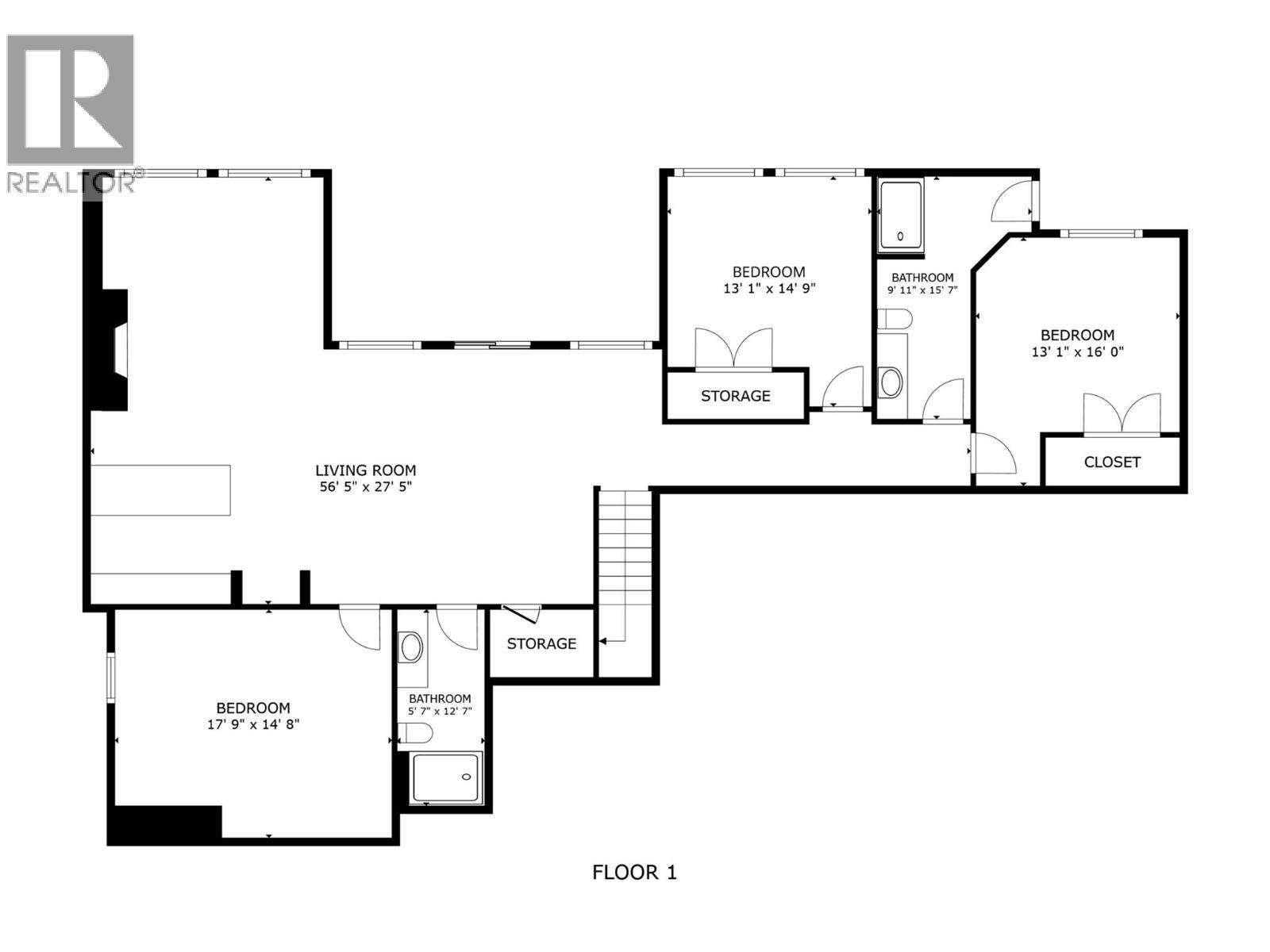
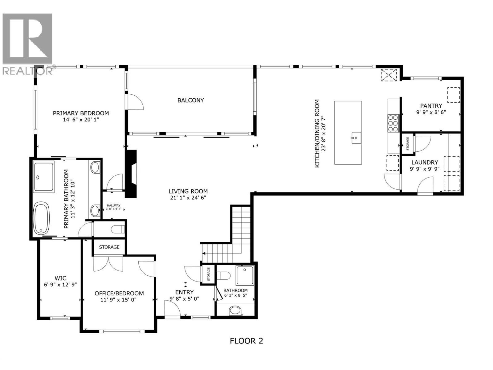
2 549 000 $ ÉvaluationExpressMC: Non disponible5 Chambres
4 Salles de bain
-
Détails
-
Carte
-
Données démographiques
-
Vue de la rue
-
Itinéraire
-
Publicité



































































