Maison À vendre à Lac Le Jeune, Kamloops, Colombie-Britannique
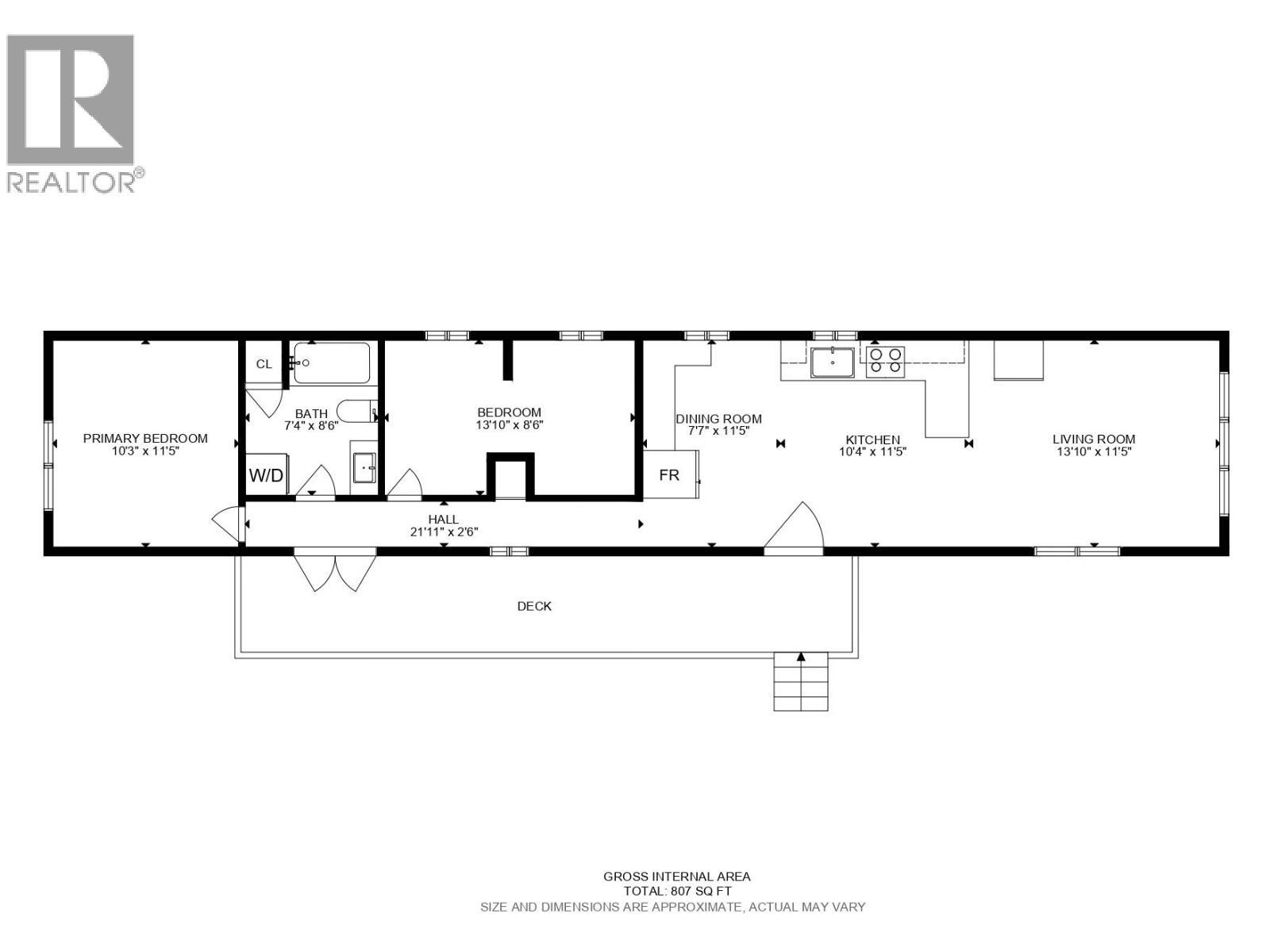
199 900 $ ÉvaluationExpressMC: Non disponible2 Chambres
1 Salle de bain
-
Détails
-
Carte
-
Données démographiques
-
Vue de la rue
-
Itinéraire
-
Publicité


























