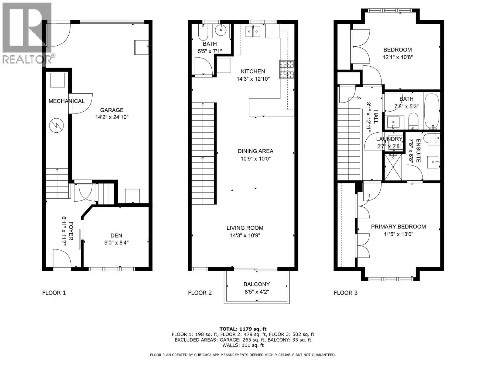
Maison À vendre à Kamloops, Colombie-Britannique
529 900 $ ÉvaluationExpressMC: Non disponible2 Chambres
3 Salles de bain
-
Détails
-
Carte
-
Données démographiques
-
Vue de la rue
-
Itinéraire
-
Publicité





























