Maison À vendre à Eagle Bay, Colombie-Britannique
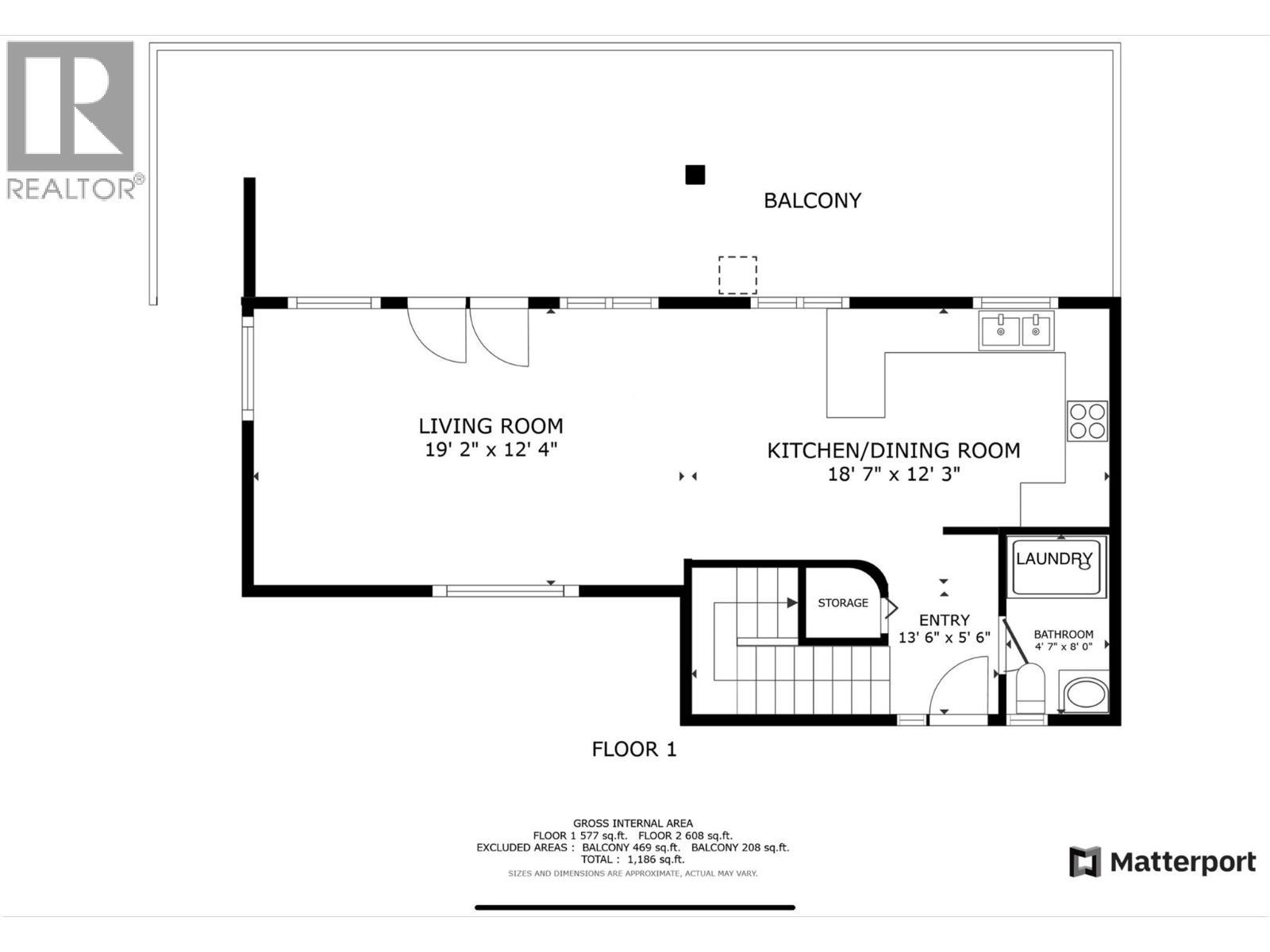
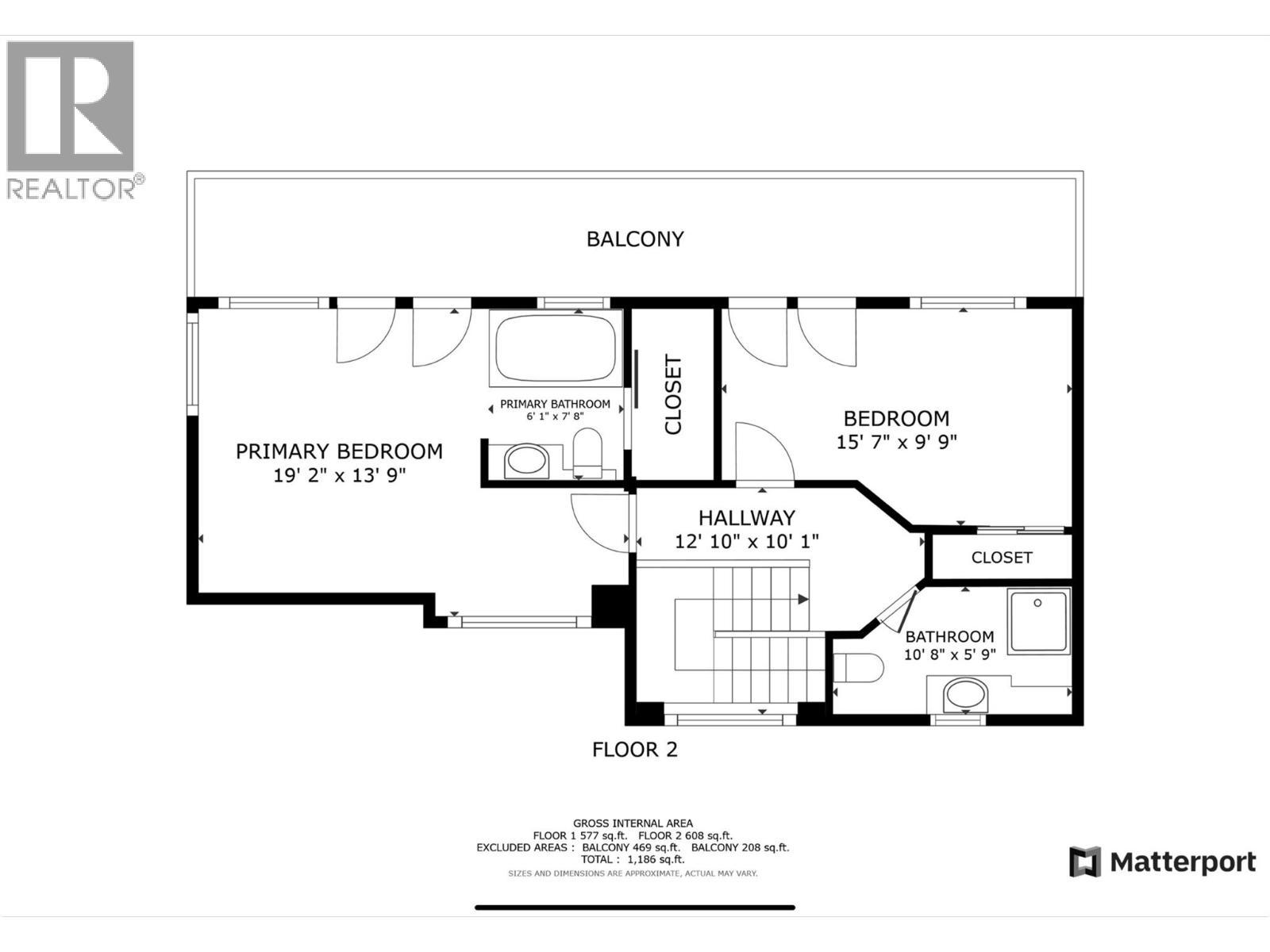
471 500 $ ÉvaluationExpressMC: Non disponible2 Chambres
3 Salles de bain
-
Détails
-
Carte
-
Données démographiques
-
Vue de la rue
-
Itinéraire
-
Publicité



































































