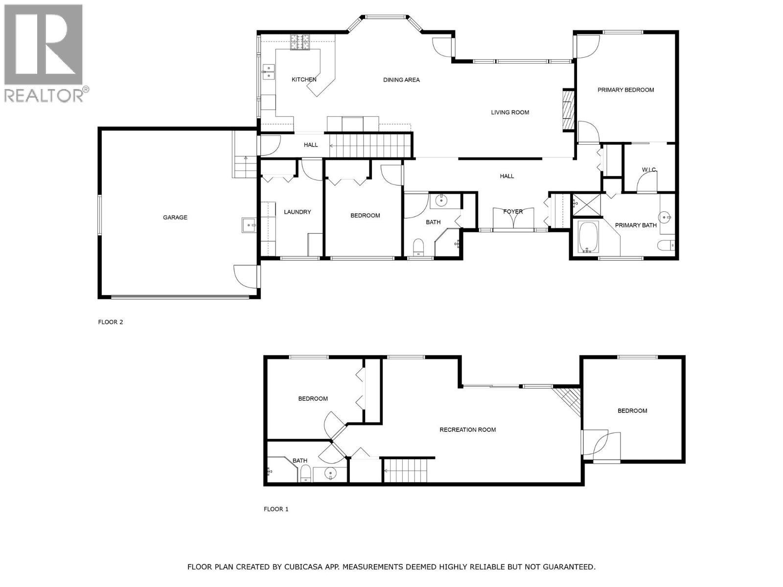
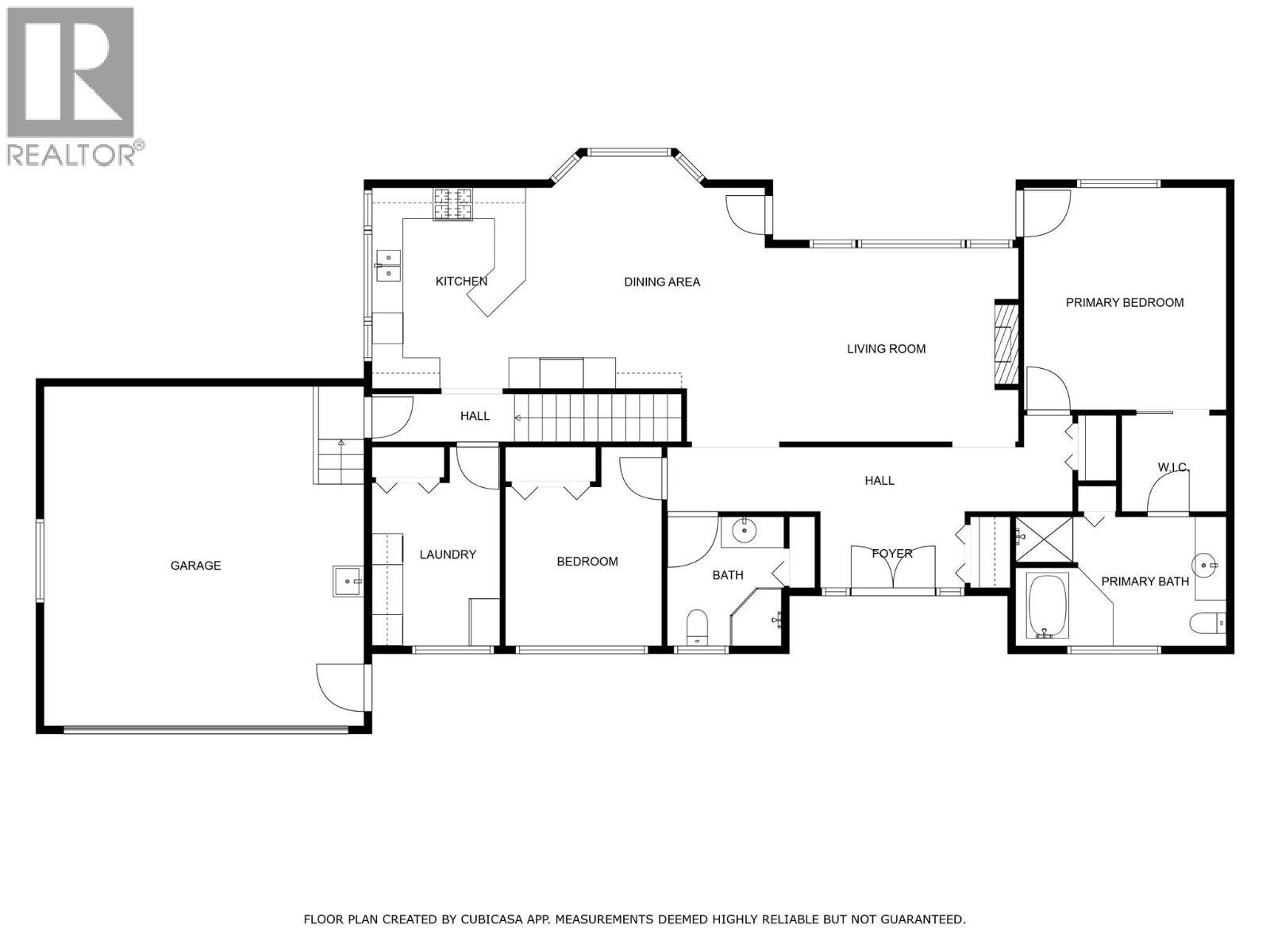
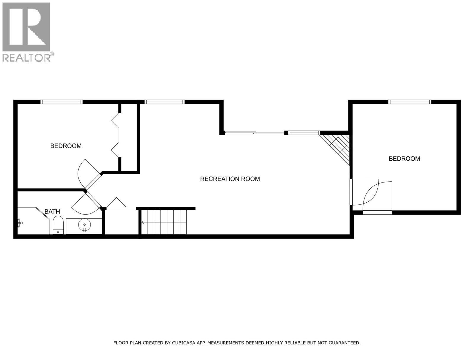
Maison À vendre à Christina Lake, Colombie-Britannique
749 000 $ ÉvaluationExpressMC:4 Chambres
3 Salles de bain
-
Détails
-
Carte
-
Données démographiques
-
Vue de la rue
-
Itinéraire
-
Publicité



























































