Maison À vendre à Timberstone, Red Deer, Alberta
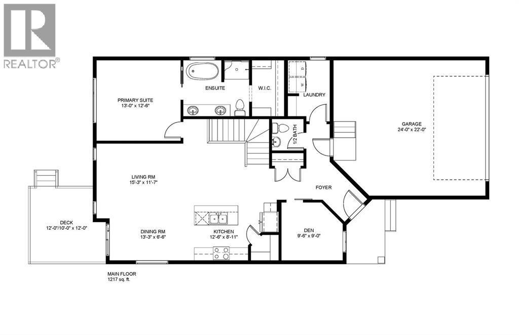
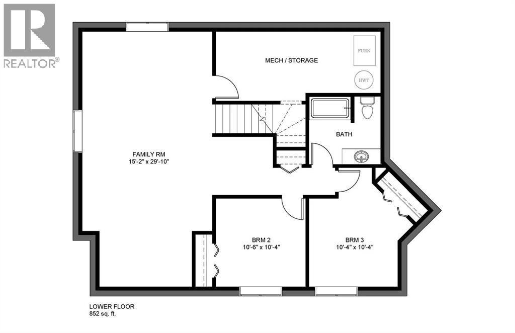
699 900 $ ÉvaluationExpressMC: Non disponible1+2 Chambres
3 Salles de bain
-
Détails
-
Carte
-
Données démographiques
-
Vue de la rue
-
Itinéraire
-
Publicité






































