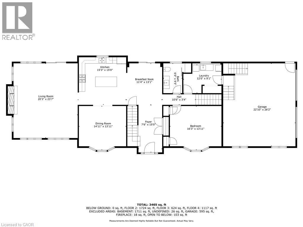
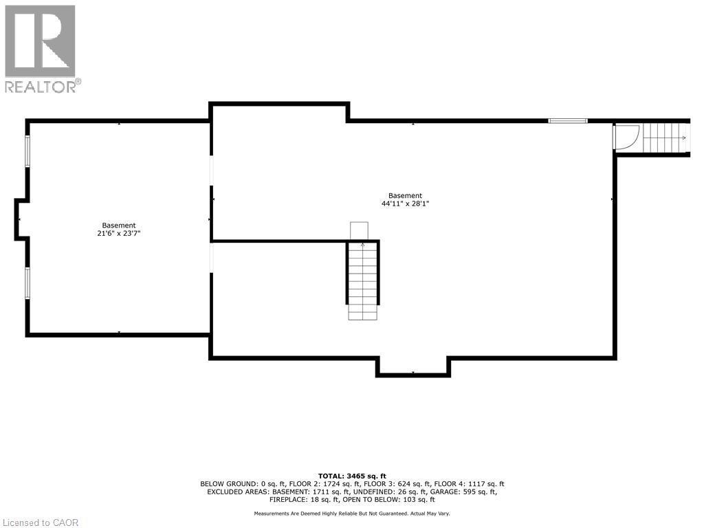
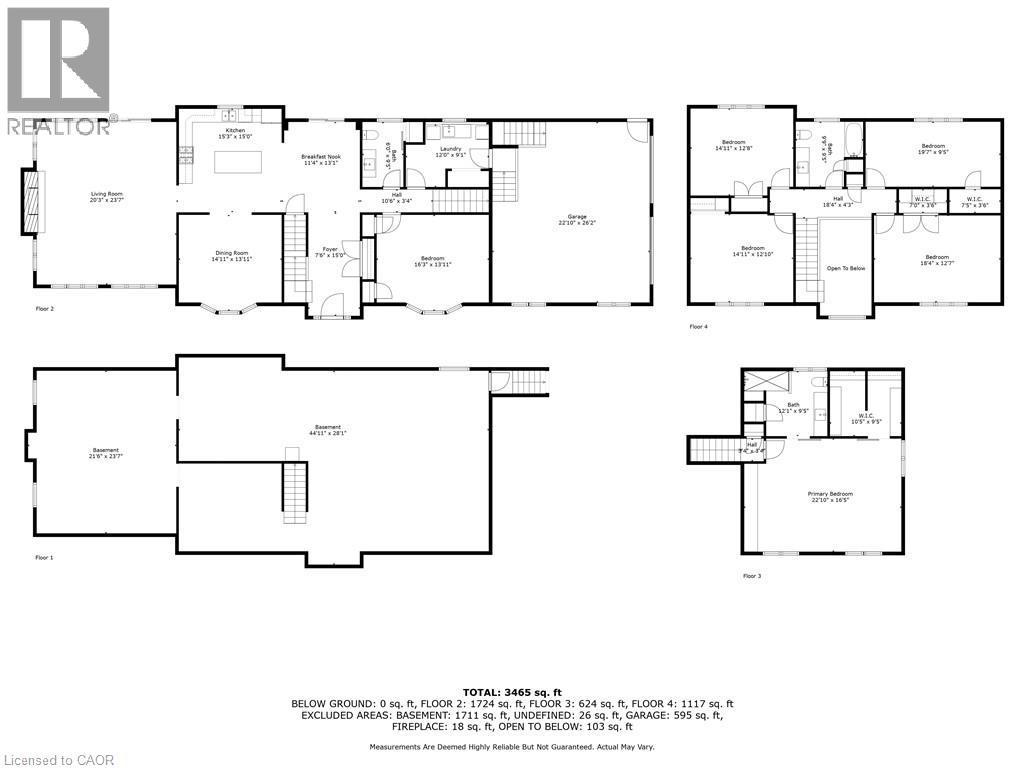
Maison À vendre à Caledonia, Ontario
1 799 900 $ ÉvaluationExpressMC: Non disponible5 Chambres
3 Salles de bain
-
Détails
-
Carte
-
Données démographiques
-
Vue de la rue
-
Itinéraire
-
Publicité
MULTIMEDIA

















































