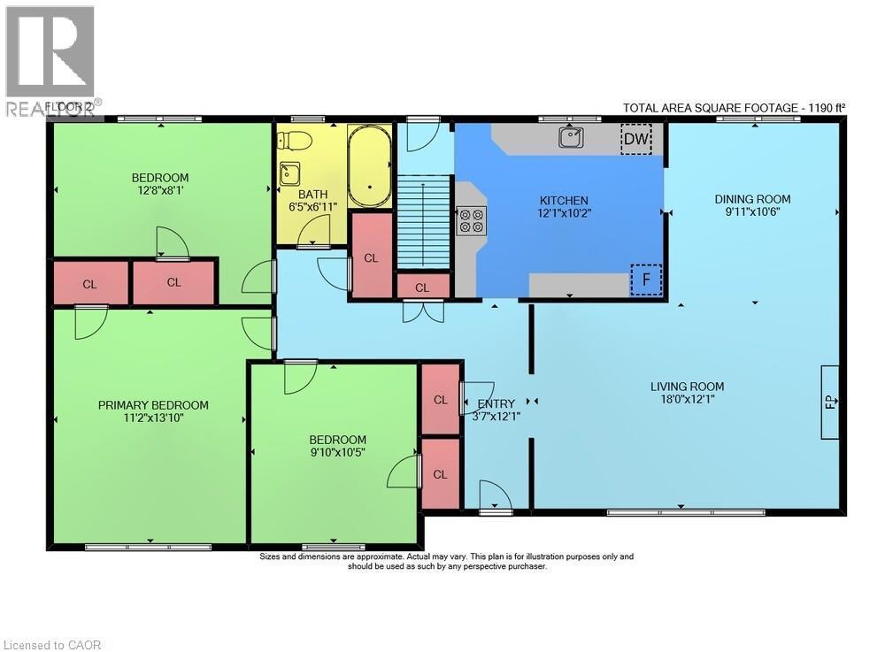
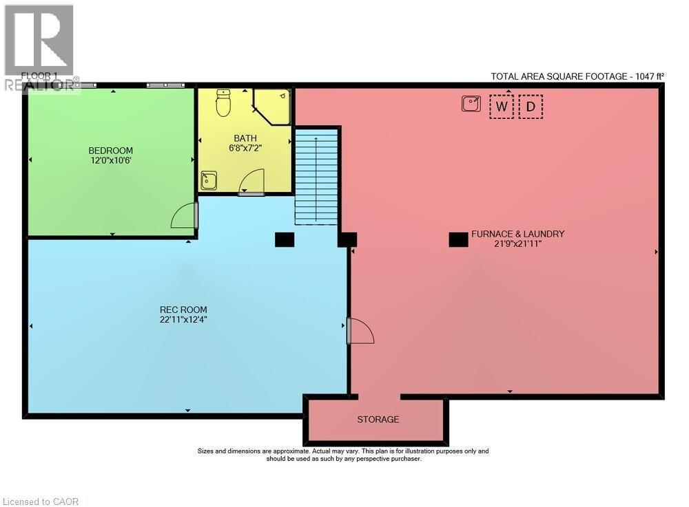
Maison À vendre à Bayview, Burlington, Ontario
849 900 $ ÉvaluationExpressMC: Non disponible3+1 Chambres
2 Salles de bain
-
Détails
-
Carte
-
Données démographiques
-
Vue de la rue
-
Itinéraire
-
Publicité
MULTIMEDIA












































