Sainte-Sophie QC, J5J 2P9
Remarks:
Nouveau prix! Dès l'entrée, vous serez charmé par sa luminosité abondante & son plafond cathédral qui apporte une impression de grandeur! La grande salle de séjour avec foyer au bois crée une ambiance chaleureuse & conviviale! Une jolie cuisine, 1 salle de bain avec bain à remous et 3 chambres complètent l'espace de vie. Vous apprécierez aussi le garage tandem pouvant accueillir 2 véhicules! Propriété soigneusement entretenue par le même propriétaire depuis 1972, gage de qualité et de fiabilité! Une occasion rare sur le marché immobilier! Prière de nous contacter afin de prévoir une visite à votre agenda!
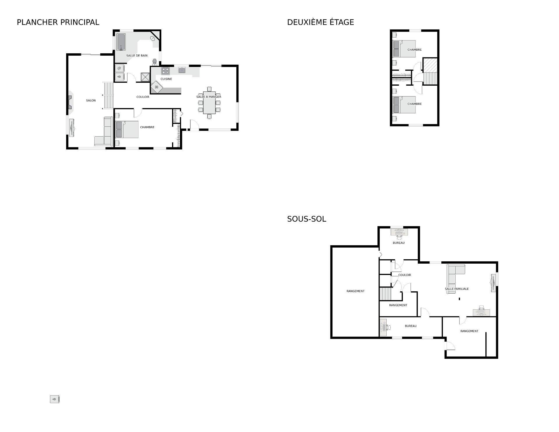
Hall d'entrée en céramique donnant directement sur la cuisine et la salle à manger. La propriété se distingue par son plafond cathédral et l'ajout d'une thermopompe murale pour un confort accru.
Agrandie en 1995, cette demeure offre une vaste salle de séjour avec foyer au bois et de superbes planchers en lattes de bois. On y retrouve également une salle de bain avec bain à remous et une spacieuse chambre principale.
À l'étage, deux chambres supplémentaires complètent l'espace de vie.
Le sous-sol propose une grande salle familiale, un bureau à domicile, plusieurs pièces de rangement ainsi qu'une sortie extérieure indépendante!
Cette charmante propriété est située sur un coin de rue et repose sur un vaste terrain de 15 776 pieds². Elle offre un grand garage détaché isolé pouvant accueillir deux véhicules.
Informations supplémentaires:
- Même propriétaire depuis 1972, elle a bénéficié de rénovations majeures en 1995, incluant l'agrandissement de la maison, la construction du garage, le remplacement du drain et de l'installation septique.
- Le toit du garage a été refait en 2025 et celui de la maison en 2012. De plus, la plomberie au sous-sol est déjà installée afin d'accueillir une future salle de bain!
Une propriété offrant beaucoup et à excellent prix!
À qui la chance?
Inclusions: Luminaires, thermopompe murale, hotte et système d'alarme.
Exclusions : Rideaux, pôles et porte moustiquaire à l'étage.
Building Features:
- Style: Detached
- Basement: 6 feet and more, Partially finished
- Distinctive Features: Street corner
- Driveway: Double width or more, Unpaved
- Fireplace-Stove: Wood fireplace
- Foundation: Poured concrete, Concrete blocks
- Garage: Detached, Tandem
- Lot: Landscaped
- Parking: Driveway, Garage
- Property or unit amenity: Central vacuum cleaner system installation, Wall-mounted heat pump
- Roofing: Asphalt shingles
- Siding: Aggregate, Vinyl
- Window Type: Sliding, Casement
- Windows: PVC
- Heating System: Electric baseboard units
- Heating Energy: Electricity, Heating oil
- Water Supply: Shallow well
- Sewage System: Disposal field, Septic tank
Taxes:
- Municipal Tax: $2,143
- School Tax: $226
- Annual Tax Amount: $2,369
Property Assessemnt:
- Lot Assessment: $39,200
- Building Assessment: $253,700
- Total Assessment: $292,900
Property Features:
- Bedrooms: 3
- Bathrooms: 1
- Built in: 1970
- Lot Depth: 100.0 Feet
- Lot Frontage: 118.0 Feet
- Lot Size: 15776.00 Square Feet
- Zoning: RESI
- No. of Parking Spaces: 10
Rooms:
- Kitchen - Irregular Ground Level 1.78 m x 4.09 m 5.10 ft x 13.5 ft Flooring: Ceramic
- Living - Irregular Ground Level 4.78 m x 5.31 m 15.8 ft x 17.5 ft Flooring: Ceramic
- Other Ground Level 8.18 m x 3.91 m 26.10 ft x 12.10 ft Flooring: Wood
- Primary Bedroom Ground Level 3.45 m x 4.93 m 11.4 ft x 16.2 ft Flooring: Wood
- Bathroom Ground Level 4.22 m x 3.73 m 13.10 ft x 12.3 ft Flooring: Ceramic
- Bedroom 2nd Level 3.40 m x 3.91 m 11.2 ft x 12.10 ft Flooring: Wood
- Bedroom 2nd Level 3.91 m x 3.35 m 12.10 ft x 11 ft Flooring: Wood
- Family - Irregular Basement Level 9.25 m x 4.88 m 30.4 ft x 16 ft Flooring: Tiles
- Office Basement Level 5.36 m x 1.73 m 17.7 ft x 5.8 ft Flooring: Carpet
- Storage - Irregular Basement Level 3.30 m x 2.77 m 10.10 ft x 9.1 ft Flooring: Linoleum
- Storage - Irregular Basement Level 3.28 m x 4.52 m 10.9 ft x 14.10 ft Flooring: Concrete
Convert Measurement to:
Data provided by: Centris - 600 Ch Du Golf, Ile -Des -Soeurs, Quebec H3E 1A8
All information displayed is believed to be accurate but is not guaranteed and should be independently verified. No warranties or representations are made of any kind. Copyright© 2021 All Rights Reserved.
Market Price Trends
Location of 824 Ch. de l'Achigan E., Sainte-Sophie, QC, J5J 2P9
Demographic Information of 824 Ch. de l'Achigan E., Sainte-Sophie, QC, J5J 2P9
Life Stage
Growing FamiliesEmployment Type
MixedAverage Household Income
$99,458.36Average Number of Children
1.80Household Population
Household Structure
Age of Population
Education
Education Level
No certificate/diploma/degree
29.74 %High school certificate or equivalent
21.65 %Apprenticeship trade certificate/diploma
28.94 %College/non-university certificate
13.24 %University Degree
6.44 %Commuter
Travel To Work
By Car
95.68 %By Public Transit
0.0 %By Walking
0.0 %By Bicycle
0.0 %By Other Methods
4.32 %Cultural Diversity
Knowledge of Official Language
Mother Tongue
Building Information
Building Type
Apartments (Low and High Rise)
1.98 %Houses
98.02 %






















































































