Button CopyPathCircle CloseCircle Left ArrowArrow Down Icon GreyClosecirclecircleBurger





SEARCH

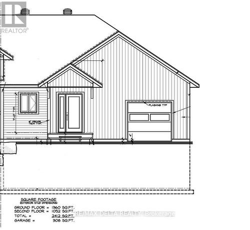
Income Properties for Sale in Champlain