Trois-Rivières QC, G8Z 3S5
Remarques :
L'Avenue vous présente le 2825 Boul. du Carmel! Cette unique propriété vous charmera dès votre entrée. Au rez-de-chaussée, l'aire de vie principale offre une grande pièce ouverte réunissant cuisine et salon, le véritable coeur de la maison! À l'étage, trois chambres et une salle de bain complète avec plancher chauffant. Au sous-sol, une grande chambre principale avec deux walk-ins séparés, une salle de bain complète, une salle de lavage et une grande salle familiale pour vos moments en famille. Emplacement de choix, près de l'hôpital, l'autoroute et de tous les services. Libre immédiatement! Voici l'occasion parfaite de devenir propriétaire!
Cette solide maison qui a fait ses preuves se démarque notamment par les améliorations et les rénovations qu'elle à reçues :
- Installation d'un drain français intérieur et d'une membrane d'étanchéité sur les fondations.
- Terrassement complet du terrain, incluant une nouvelle dalle de béton à l'arrière et une entrée d'asphalte neuve.
- Joints de maçonnerie et revêtement extérieur entièrement refaits.
- Clôture neuve installée.
- Électricité et plomberie entièrement refaites.
- Entrée d'eau et conduite d'égout remplacées à neuf.
- Ajout de deux foyers électriques.
- Revêtement de plancher entièrement refait.
- Isolation des murs refaite. (Seulement les murs de l'étage n'ont pas été refaits)
- Portes et fenêtres remplacées au complet.
- Installation d'une thermopompe et d'un échangeur d'air.
- Planchers chauffants dans les deux salles de bains complètes.
- Cuisine entièrement rénovée.
- Isolation de laine soufflée ajoutée dans l'entretoit et structure du toit renforcée au-dessus de la section à aire ouverte du rez-de-chaussée.
Inclusions: Thermopompe murale, pôles, bac à déchet, bac de recyclage, bac de compost, cabanon
Exclusions : Rideaux, miroirs dans les salles de bains et les meubles sur place.
Particularités du bâtiment :
- Style: Maison détachée
- Allée: Asphalte
- Armoires de cuisine: Mélamine
- Dimensions : 14.69 x 7.45 METRE
- Équipement disponible: Thermopompe murale
- Fenestration: PVC
- Fondation: Blocs de béton
- Foyer: Oui
- Foyer-Poêle: Électrique
- Proximité: Cégep, Hôpital, Parc, Piste cyclable, École primaire, École secondaire, Université
- Revêtement: Pierre, Vinyle
- Revêtement de la toiture: Bardeaux d'asphalte
- Salle de bains: Douche indépendante
- Sous-sol: 6 pieds et plus, Entrée extérieure, Totalement aménagé
- Stationnement: Oui
- Terrain: Clôturé
- Mode de chauffage: Plinthes électriques
- Énergie pour le chauffage: Électricité
- Approvisionnement en eau: Municipalité
- Système d'égouts: Municipalité
Taxes:
- Taxes municipales: 2 543 $
- Taxe scolaire: 148 $
- Taxes annuelles totales: 2 691 $
Dépenses:
- Électrique: 2 180 $
Property Assessemnt:
- Évaluation du terrain: 89 300 $
- Évaluation de l'immeuble: 161 300 $
- Évaluation totale: 250 600 $
Caractéristiques :
- Bâti en: 1950
- Chambres : 3+1
- Dimensions du terrain : 661.20 Mètres carrés
- Irregular: Oui
- Largeur du terrain en façade : 30.48 Mètre
- Profondeur du terrain : 19.0 Mètre
- Salle(s) de bains : 2
- Salle(s) d'eau : 1
- Zonage: RESI
- Nbre d'espaces de stationnement: 4
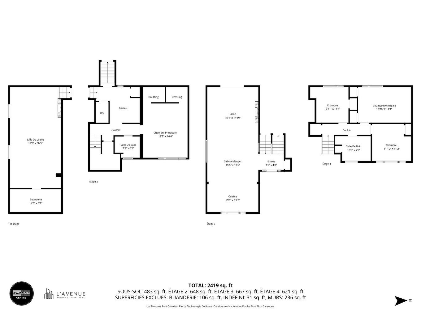
Détails des pièces :
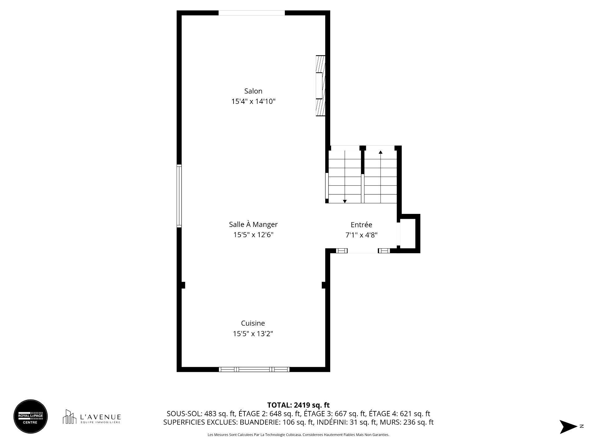
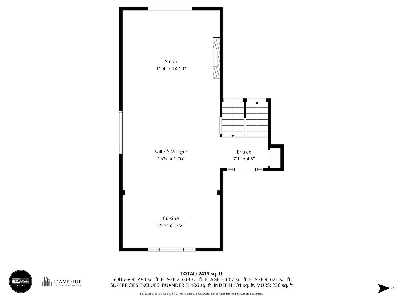
- Hall d'entrée Rez-de-chaussée 2.16 m x 1.42 m 7.1 p x 4.8 p Plancher : Céramique
- Cuisine - Irrégulier Rez-de-chaussée 4.70 m x 4.01 m 15.5 p x 13.2 p Plancher : Céramique Note: Comptoir quartz
- Salle à dîner Rez-de-chaussée 4.70 m x 3.81 m 15.5 p x 12.6 p Plancher : Céramique Note: Thermopompe
- Salon Rez-de-chaussée 4.70 m x 4.52 m 15.5 p x 14.10 p Plancher : Céramique
- Chambre 2e niveau 3.45 m x 3.02 m 11.4 p x 9.11 p Plancher : Bois
- Chambre 2e niveau 3.45 m x 4.88 m 11.4 p x 16.0 p Plancher : Bois
- Chambre - Irrégulier 2e niveau 3.61 m x 3.40 m 11.10 p x 11.2 p Plancher : Bois
- Salle de bains - Irrégulier 2e niveau 2.36 m x 3.28 m 7.9 p x 10.9 p Plancher : Céramique Note: Plancher chauffant
- Chambre principale Sous-sol 4.09 m x 5.03 m 13.5 p x 16.6 p Plancher : Plancher flottant Note: 2 walk-ins séparés
- Salle de bains Sous-sol 1.96 m x 2.26 m 6.5 p x 7.5 p Plancher : Céramique Note: Bain douche, plancher chauffan
- Salle de lavage Sous-sol 3.20 m x 2.59 m 10.6 p x 8.6 p Plancher : Plancher flottant
- Salle d'eau Sous-sol 1.93 m x 1.17 m 6.4 p x 3.10 p Plancher : Céramique
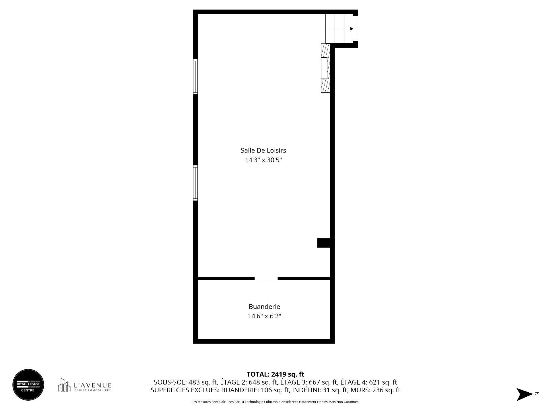
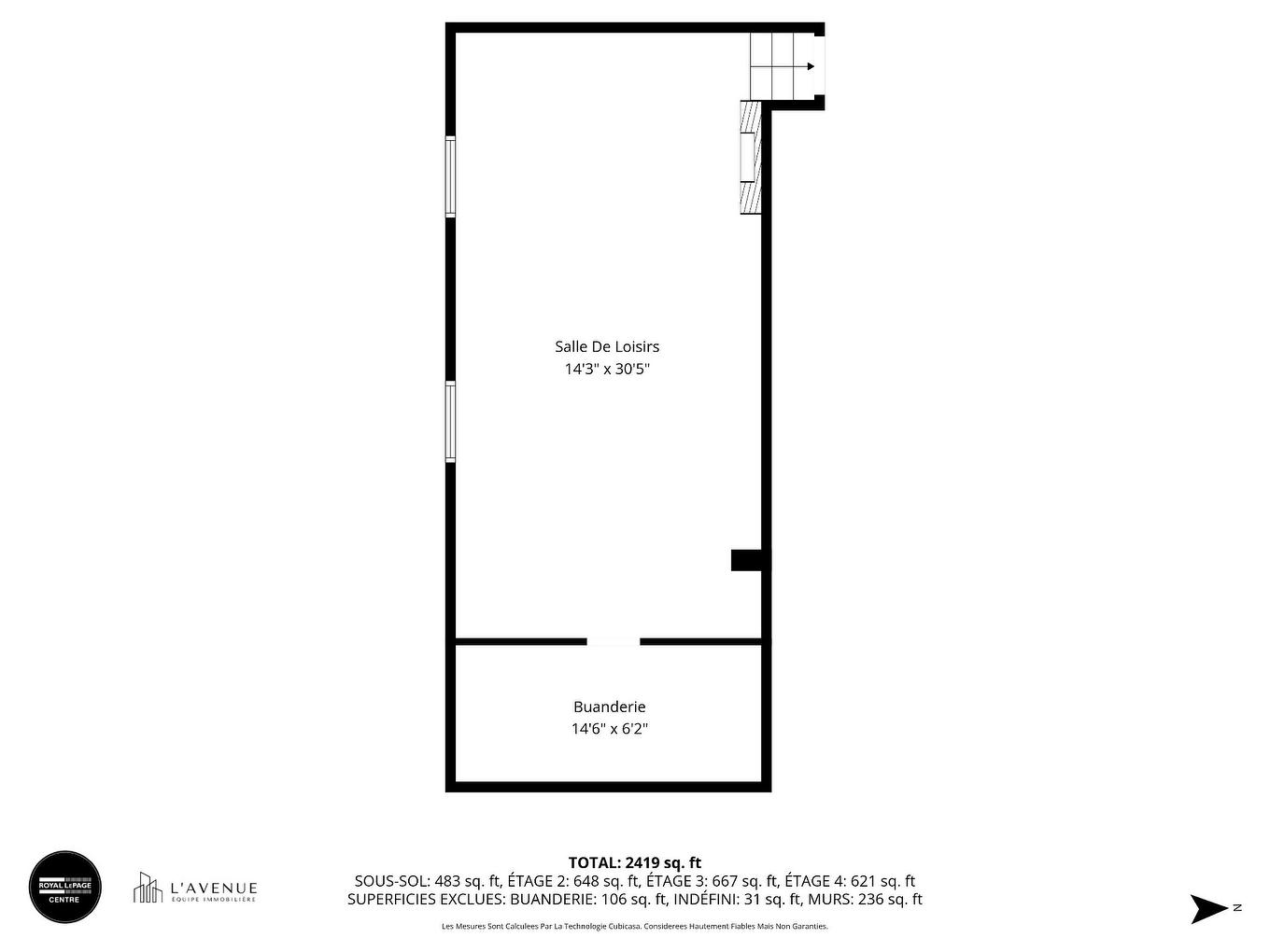
- Salle familiale - Irrégulier Sous-sol 9.27 m x 4.34 m 30.5 p x 14.3 p Plancher : Plancher flottant
- Autre Salle mécanique Sous-sol 1.88 m x 4.42 m 6.2 p x 14.6 p Plancher : Béton
Convertir la mesure en :
Données fournies par : Centris - 600 Ch Du Golf, Ile -Des -Soeurs, Québec H3E 1A8
Nous croyons que tous les renseignements affichés sont exacts, mais nous ne le garantissons pas; les renseignements devraient être vérifiés de façon indépendante. Aucune garantie ou représentation de quelque nature que ce soit n’est offerte. Droits© 2021 Tous les droits sont réservés.
Tendances des prix du marché immobilier
Emplacement de 2825 Boul. du Carmel, Trois-Rivières, QC, G8Z 3S5
Données démographiques de 2825 Boul. du Carmel, Trois-Rivières, QC, G8Z 3S5
Étape de vie
Familles avec parents dans la cinquantaineType d'emploi
MixteRevenu moyen du ménage
135 808.94 $Nombre moyen d'enfants
1,72Population à domicile
Structure à domicile
Âge de la population
Éducation
Niveau d'éducation
No certificate/diploma/degree
10.97 %Diplôme d'études secondaires ou équivalent
19.09 %Certificat ou diplôme d'apprentissage ou d'une école de métiers
16.4 %Diplôme d'études collégiales ou d'études postsecondaires (non universitaires)
22.4 %Certificat d'études universitaires
5.19 %Diplômes d'études universitaires
25.95 %Navetteur
Se rendre au travail
En auto
94.84 %En transport en commun
0.0 %À pied
1.41 %À bicyclette
0.0 %Par tout autre moyen
3.75 %Diversité Culturelle
Connaissance des langues officielles
Langue maternelle
Données Sur Le Bâtiment
Type de bâtiment
Appartements (faible hauteur et à étages multiples)
21.54 %Maisons
78.46 %




















































































































