Sainte-Martine QC, J0S 1V0
Remarques :
Condo moderne sur deux étages situé dans un secteur paisible de Sainte-Martine. Aire ouverte lumineuse avec grandes fenêtres, salon et salle à manger spacieux, deux chambres au niveau inférieur. Salle de bain élégante avec bain et douche séparés. Patio privé, deux stationnements et rangement inclus. Quartier familial près des parcs, écoles, commerces et grands axes. Idéal pour acheteurs ou investisseurs. Les photos proviennent d'une période de location précédente et peuvent ne pas refléter entièrement l'apparence actuelle.
Condo moderne à deux étages à vendre -- 67 Rue Logan, Sainte-Martine
Découvrez le parfait mélange de confort contemporain et de design bien pensé dans ce lumineux condo sur deux niveaux, situé dans la paisible communauté de Sainte-Martine. Idéal pour les premiers acheteurs, les petites familles ou les investisseurs à la recherche d'une propriété clé en main dans un secteur en plein essor.
**Caractéristiques de la propriété**
* Disposition sur deux étages avec aire de vie et salle à manger à aire ouverte, parfaite pour recevoir ou se détendre.
* Grandes fenêtres offrant une abondante luminosité naturelle et une ambiance chaleureuse.
* Niveau inférieur comprenant deux chambres de belles dimensions, offrant intimité et confort.
* Salle de bain élégante avec baignoire et douche séparée pour une expérience digne d'un spa.
* Patio privé -- idéal pour savourer votre café du matin ou admirer le coucher du soleil.
* Deux espaces de stationnement dédiés pour plus de commodité.
* Espace de rangement supplémentaire pour garder votre intérieur bien organisé.
**Emplacement de choix**
Situé dans un quartier tranquille et familial, ce condo offre un accès facile à tous les services essentiels : écoles, épiceries, et centres commerciaux à proximité, ainsi que plusieurs parcs et espaces de loisirs pour profiter du plein air. Sainte-Martine allie le charme d'un village à la praticité urbaine, avec des liens rapides vers les villes environnantes grâce aux routes et autoroutes voisines -- un équilibre parfait entre sérénité et accessibilité.
**Pourquoi acheter cette propriété?**
Que vous recherchiez votre future demeure ou un investissement sans tracas, le 67 Rue Logan offre un espace de vie moderne, une belle qualité de vie et une excellente valeur dans un secteur recherché.
Inclusions: Lave-vaisselle et stores
Exclusions : Les effets personnels du locataire, Laveuse, sécheuse, réfrigérateur, cuisinière
Particularités du bâtiment :
- Style: Appartement
- Allée: Asphalte
- Salle de bains: Douche indépendante
- Stationnement: Oui
- Énergie pour le chauffage: Électricité
- Approvisionnement en eau: Municipalité
- Système d'égouts: Municipalité
Taxes:
- Taxes municipales: 2 041 $
- Taxe scolaire: 197 $
- Taxes annuelles totales: 2 238 $
Property Assessemnt:
- Évaluation du terrain: 72 600 $
- Évaluation de l'immeuble: 243 900 $
- Évaluation totale: 316 500 $
Caractéristiques :
- Bâti en: 2012
- Chambres : 0+2
- Frais de copropriété : 125 $ Mensuel
- Salle(s) de bains : 1
- Salle(s) d'eau : 1
- Superficie habitable (approx): 1112.0 Pieds carrés
- Zonage: RESI
- Nbre d'espaces de stationnement: 2
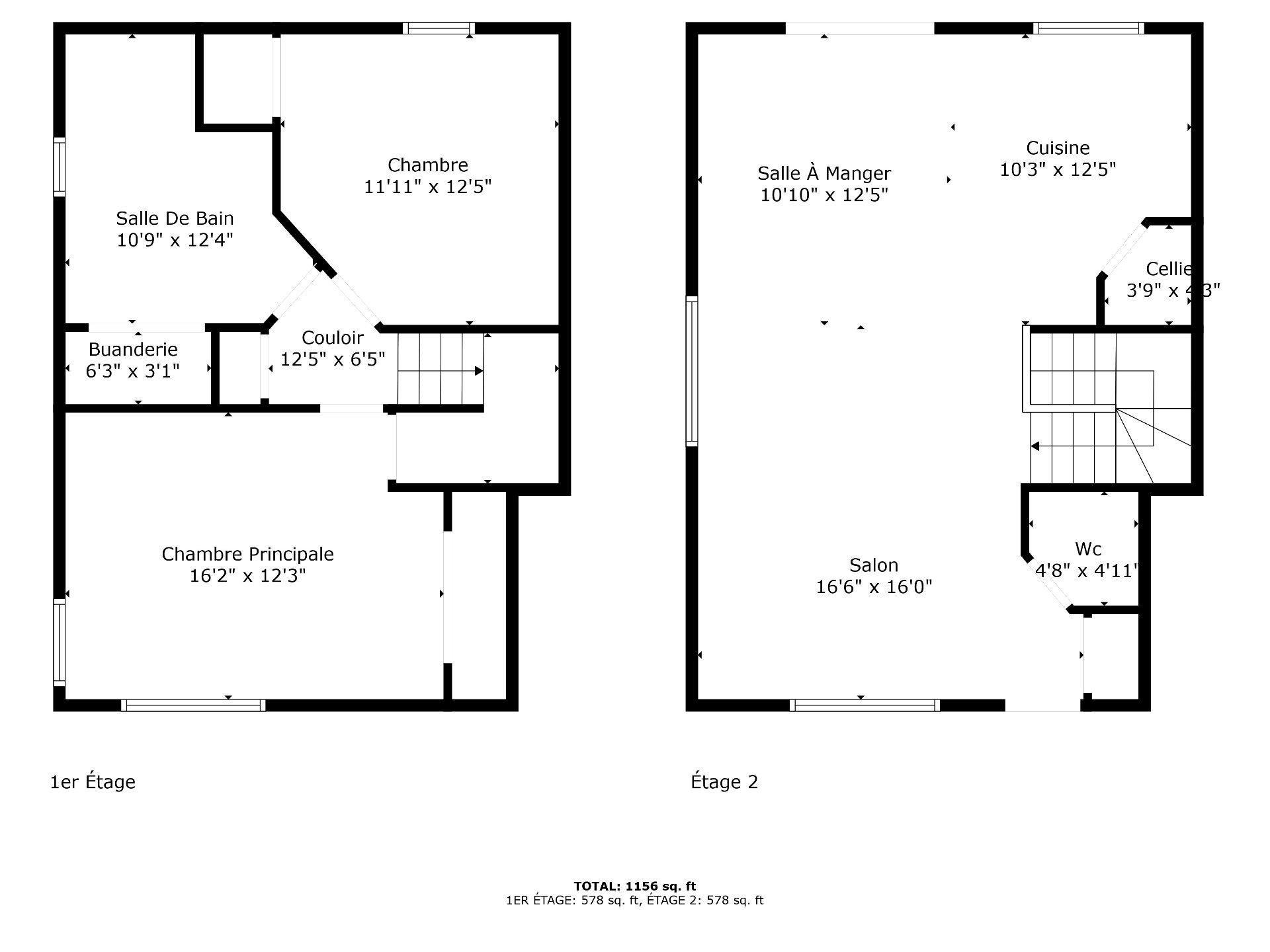
Détails des pièces :
- Chambre principale Rez-de-chaussée 4.93 m x 3.73 m 16.2 p x 12.3 p
- Chambre Rez-de-chaussée 3.63 m x 3.78 m 11.11 p x 12.5 p
- Salle de bains Rez-de-chaussée 3.28 m x 3.76 m 10.9 p x 12.4 p
- Salon 2e niveau 5.03 m x 4.88 m 16.6 p x 16.0 p
- Salle à dîner 2e niveau 3.30 m x 3.78 m 10.10 p x 12.5 p
- Cuisine 2e niveau 3.12 m x 3.78 m 10.3 p x 12.5 p
- Salle d'eau 2e niveau 1.42 m x 1.50 m 4.8 p x 4.11 p
Convertir la mesure en :
Données fournies par : Centris - 600 Ch Du Golf, Ile -Des -Soeurs, Québec H3E 1A8
Nous croyons que tous les renseignements affichés sont exacts, mais nous ne le garantissons pas; les renseignements devraient être vérifiés de façon indépendante. Aucune garantie ou représentation de quelque nature que ce soit n’est offerte. Droits© 2021 Tous les droits sont réservés.
Tendances des prix du marché immobilier
Emplacement de 67 Rue Logan, Sainte-Martine, QC, J0S 1V0
Données démographiques de 67 Rue Logan, Sainte-Martine, QC, J0S 1V0
Étape de vie
Familles avec parents dans la cinquantaineType d'emploi
MixteRevenu moyen du ménage
126 369.93 $Nombre moyen d'enfants
1,80Population à domicile
Structure à domicile
Âge de la population
Éducation
Niveau d'éducation
No certificate/diploma/degree
14.94 %Diplôme d'études secondaires ou équivalent
22.89 %Certificat ou diplôme d'apprentissage ou d'une école de métiers
23.38 %Diplôme d'études collégiales ou d'études postsecondaires (non universitaires)
19.9 %Diplômes d'études universitaires
18.9 %Navetteur
Se rendre au travail
En auto
95.76 %En transport en commun
0.0 %À pied
2.55 %À bicyclette
0.0 %Par tout autre moyen
1.69 %Diversité Culturelle
Connaissance des langues officielles
Langue maternelle
Données Sur Le Bâtiment
Type de bâtiment
Appartements (faible hauteur et à étages multiples)
32.01 %Maisons
67.99 %


















































