Napierville QC, J0J 1L0
Remarques :
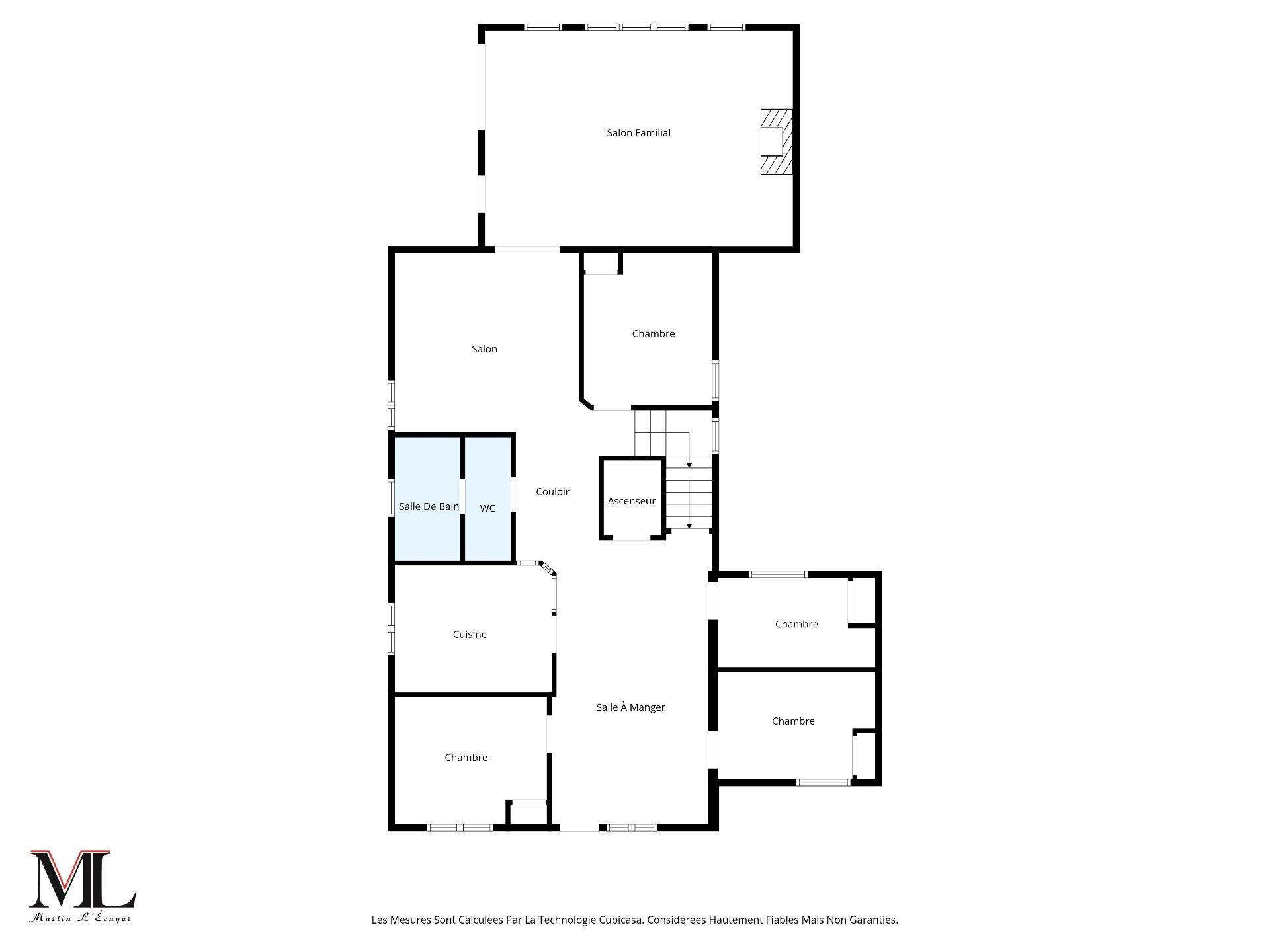
**Propriété spacieuse et polyvalente** Découvrez cette impressionnante résidence à deux étages offrant 11 chambres et 3 salles de bains, parfaite pour accueillir une grande famille, loger vos proches ou encore pour personnes à mobilité réduite grâce à son ascenseur intégré reliant les deux niveaux et une entrée dans la propriété avec une porte automatique. Construite en 1865 mais avec beaucoup d'améliorations au fils des années, cette propriété allie confort moderne et espaces généreux.
Au rez-de-chaussée, une immense salle familiale de 17 x 24 contruite en 2014 vous invite à la détente, avec ses planchers de céramique chauffants et son foyer au gaz qui crée une ambiance chaleureuse. Grande salle à manger et cuisine avec énormément d'armoires, la vente inclus la plaque chauffante, four encastré, réchaud encastré, lave-vaisselle, four micro-onde, frigidaire.
L'étage supérieur abrite plusieurs chambres spacieuses, parfaites pour enfants, invités ou même un espace bureau à domicile. Chaque étage occupe une salle de bains offrent praticité et confort à tous les occupants.
À l'extérieur, profitez d'un vaste terrain paysager de 22 704 pieds carrés, agrémenté de beaux arbres matures procurant intimité et sérénité. Une possibilité de subdivision du terrain offre un excellent potentiel d'investissement.
La propriété comprend également un garage détaché de 20 x 32, une grande entrée double asphaltée, et tout l'espace nécessaire pour vos véhicules, remorques ou VR.
Une maison rare sur le marché, idéale pour une famille nombreuse, un projet intergénérationnel, ou toute personne souhaitant espace, confort et accessibilité dans un environnement paisible.
Ou pour un entrepreneur qui aimerait ouvrir une résidence pour:
-Jeunes en diffculté
-Déficience intellectuelle
-Trouble du spectre de l'autisme
-Déficience physique
-Santé mentale
Inclusions: Pôles et rideaux, aspirateur central et accessoires, lit et matelas au sous-sol, 2 frigidaires, micro-onde, plaque chauffante, four encastré, lave-vaisselle, laveuse-sécheuse, réchaud encastré, luminaires, système d'alarme
Exclusions : 2 supports mural de télévision
Particularités du bâtiment :
- Style: Maison détachée
- Adapté pour personnes à mobilité réduite: Entrée adaptée, Rampe d'accès extérieure
- Air climatisé: Oui
- Allée: Asphalte, Double largeur ou plus
- Appareils en location (mensuel): Réservoir au propane
- Armoires de cuisine: Bois
- Dimensions : 7.57 x 19.14 METRE
- Équipement disponible: Installation aspirateur central, Adoucisseur d'eau, Ascenseur(s), Climatiseur mural, Cour privée, Détecteur d'incendie, Système d'alarme, Thermopompe murale
- Fenestration: PVC
- Fondation: Béton coulé, Blocs de béton, Pierre
- Foyer: Oui
- Foyer-Poêle: Foyer au gaz
- Garage: Détaché, Double largeur ou plus
- Proximité: Autoroute, Garderie/CPE, Golf, Parc, Piste cyclable, École primaire, École secondaire, Sentier de motoneige, Sentier de VTT
- Revêtement: Fibre pressée, Pierre de béton
- Revêtement de la toiture: Bardeaux d'asphalte
- Sous-sol: 6 pieds et plus, Entrée extérieure, Totalement aménagé
- Stationnement: Oui
- Terrain: Bordé par des haies, Boisé, Paysager
- Topographie: Plat
- Type de fenestration: Manivelle (battant)
- Mode de chauffage: Plinthes électriques, Radiant
- Énergie pour le chauffage: Électricité
- Approvisionnement en eau: Municipalité
- Système d'égouts: Municipalité
Taxes:
- Taxes municipales: 5 213 $
- Taxe scolaire: 519 $
- Taxes annuelles totales: 5 732 $
Property Assessemnt:
- Évaluation du terrain: 310 900 $
- Évaluation de l'immeuble: 598 100 $
- Évaluation totale: 909 000 $
Caractéristiques :
- Bâti en: 1865
- Chambres : 9+2
- Dimensions du terrain : 2109.30 Mètres carrés
- Irregular: Oui
- Largeur du terrain en façade : 36.85 Mètre
- Profondeur du terrain : 58.46 Mètre
- Salle(s) de bains : 3
- Zonage: RESI
- Nbre d'espaces de stationnement: 22
Détails des pièces :
- Cuisine Rez-de-chaussée 2.97 m x 3.61 m 9.9 p x 11.10 p Plancher : Linoléum
- Salle à dîner Rez-de-chaussée 3.30 m x 6.58 m 10.10 p x 21.7 p Plancher : Bois
- Salon Rez-de-chaussée 4.22 m x 4.27 m 13.10 p x 14 p Plancher : Bois
- Salle familiale Rez-de-chaussée 5.31 m x 7.26 m 17.5 p x 23.10 p Plancher : Céramique Note: Plancher chauffant
- Salle de bains Rez-de-chaussée 2.57 m x 2.74 m 8.5 p x 9 p Plancher : Linoléum
- Chambre Rez-de-chaussée 2.74 m x 3.45 m 9 p x 11.4 p Plancher : Bois
- Chambre Rez-de-chaussée 2.13 m x 3.66 m 7 p x 12 p Plancher : Tuiles
- Chambre Rez-de-chaussée 2.13 m x 3.66 m 7 p x 12 p Plancher : Tuiles
- Chambre Rez-de-chaussée 2.90 m x 3.61 m 9.6 p x 11.10 p Plancher : Bois
- Chambre 2e niveau 2.92 m x 3.66 m 9.7 p x 12 p Plancher : Linoléum
- Chambre 2e niveau 2.74 m x 3.84 m 9 p x 12.7 p Plancher : Linoléum
- Chambre 2e niveau 2.84 m x 4.04 m 9.4 p x 13.3 p Plancher : Linoléum
- Chambre 2e niveau 3.48 m x 3.61 m 11.5 p x 11.10 p Plancher : Linoléum
- Chambre 2e niveau 3.05 m x 3.61 m 10 p x 11.10 p Plancher : Linoléum
- Salle de bains 2e niveau 2.36 m x 3.05 m 7.9 p x 10 p Plancher : Linoléum
- Chambre Sous-sol 2.67 m x 4.62 m 8.9 p x 15.2 p Plancher : Céramique Note: Plancher chauffant
- Chambre Sous-sol 2.13 m x 2.74 m 7 p x 9 p Plancher : Céramique Note: Plancher chauffant
- Cuisine Sous-sol 2.44 m x 3.33 m 8 p x 10.11 p Plancher : Céramique Note: Plancher chauffant
- Salon Sous-sol 3.05 m x 3.33 m 10 p x 10.11 p Plancher : Céramique Note: Plancher chauffant
- Bureau Sous-sol 2.44 m x 2.57 m 8 p x 8.5 p Plancher : Céramique Note: Plancher chauffant
- Salle de bains Sous-sol 2.13 m x 2.36 m 7 p x 7.9 p Plancher : Céramique Note: Plancher chauffant
Convertir la mesure en :
Données fournies par : Centris - 600 Ch Du Golf, Ile -Des -Soeurs, Québec H3E 1A8
Nous croyons que tous les renseignements affichés sont exacts, mais nous ne le garantissons pas; les renseignements devraient être vérifiés de façon indépendante. Aucune garantie ou représentation de quelque nature que ce soit n’est offerte. Droits© 2021 Tous les droits sont réservés.
Tendances des prix du marché immobilier
Emplacement de 249 Rue St-Henri, Napierville, QC, J0J 1L0
Données démographiques de 249 Rue St-Henri, Napierville, QC, J0J 1L0
Étape de vie
Familles avec parents dans la cinquantaineType d'emploi
MixteRevenu moyen du ménage
105 222.58 $Nombre moyen d'enfants
1,87Population à domicile
Structure à domicile
Âge de la population
Éducation
Niveau d'éducation
No certificate/diploma/degree
23.87 %Diplôme d'études secondaires ou équivalent
23.7 %Certificat ou diplôme d'apprentissage ou d'une école de métiers
22.66 %Diplôme d'études collégiales ou d'études postsecondaires (non universitaires)
18.02 %Certificat d'études universitaires
2.31 %Diplômes d'études universitaires
9.44 %Navetteur
Se rendre au travail
En auto
86.69 %En transport en commun
0.0 %À pied
8.79 %À bicyclette
0.0 %Par tout autre moyen
4.52 %Diversité Culturelle
Connaissance des langues officielles
Langue maternelle
Données Sur Le Bâtiment
Type de bâtiment
Appartements (faible hauteur et à étages multiples)
25.35 %Maisons
74.65 %
























































































































































