Mirabel QC, J7N 1M1
Remarques :
COUP DE COEUR ASSURÉ! DOMAINE EXCEPTIONNEL, SITE UNIQUE, UN PAYSAGE À COUPER LE SOUFFLE, et ce, à proximité de tous les services... Magnifique cottage en brique et agrégat avec garage double au look intemporel, moderne et élégant à la fois avec portes et fenêtres noires, foyer de pierre au salon... Concept à aire ouverte au RDC offrant 3 grandes cc, 3 salles de bain, bcp de fenestration laissant entrer toute la luminosité naturelle et offrant une vue dégagée sur le lac et la magnifique cascade d'eau... Spacieuse cuisine sobre et contemporaine, comptoir de granite et plus... voir addenda!
COUP DE COEUR ASSURÉ! DOMAINE EXCEPTIONNEL, SITE UNIQUE, UN PAYSAGE À COUPER LE SOUFFLE, et ce, à proximité de tous les services.
Magnifique cottage en brique et agrégat avec garage double, au look intemporel, moderne et élégant à la fois avec portes et fenêtres noires, foyer de pierre au salon...
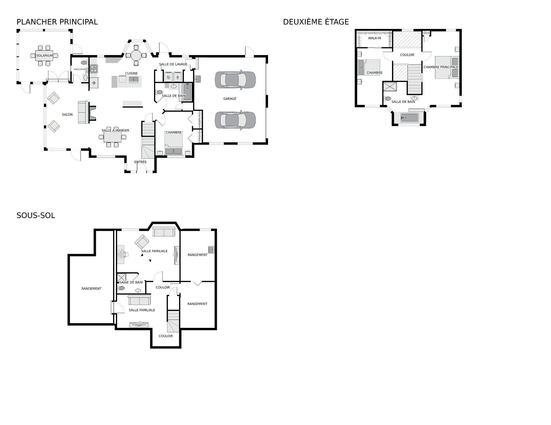
Concept à aire ouverte au RDC; grand espace fluide où le salon, la salle à manger et la cuisine s'unissent en assurant une circulation aisée. Beaucoup de fenestration laissant entrer toute la luminosité naturelle et offrant une vue dégagée sur le lac et la magnifique cascade d'eau...
Spacieuse cuisine sobre et élégante avec des éléments traditionnels revisités de manière contemporaine; comptoirs en granite noir contrastant magnifiquement avec les armoires en bois, îlot central spacieux et fonctionnel et beaucoup de rangement. Une 3e chambre à coucher avec salle de bain et salle de lavage s'y trouvent aussi sur ce même plancher.
L'étage comprend 2 chambres à coucher de grandes dimensions pour maximiser l'espace, l'une d'elles avec grand placard intégré et l'autre ayant une salle de bains des maîtres adjacente.
Le sous-sol y compte 2 salles familiales, une salle de bains avec douche et plusieurs grands espaces de rangement. Un superbe garage double avec plancher en époxy est attaché à la maison pour plus de praticité.
L'extérieur vous offre un paysage à couper le souffle, situé sur un terrain de près de 95 000 pieds carrés, un véritable havre de paix où la nature et l'aménagement paysager se rencontrent pour créer une atmosphère sereine et immersive.
Le sentier principal longeant une cascade d'eau de la Rivière du Nord permet de découvrir le paysage sous différents angles.
Des points de vue stratégiquement placés le long des sentiers, avec des bancs ou des plateformes en bois, des haltes en pavé sous gazébo et pergolas permettent de contempler les paysages impressionnants. Ces endroits offrent une vue dégagée sur la rivière, la cascade et l'ensemble du jardin, créant un lieu idéal pour se détendre ou prendre une pause tout en admirant la beauté naturelle qui entoure la propriété...
Inclusions: Système d'alarme, luminaires, outils de foyer salon, foyer d'ambiance ext, L-V., L.-S., stores, rideaux de fantaisie SDB du RDC, jardin asiatique et son contenu, SPA, système d'irr. couvrant 17500 pi2, eau venant du cour d'eau avec pompe submersible, 2 ouvre-portes de garage électrique, équipement de cabane à sucre et accessoires, bois de chauffage restant pour le poêle, foyer au bois et bouilloire pour l'eau d'érable, meubles extérieurs, tracteur à gazon, 4 roues HONDA, souffleuse
Exclusions : Meubles et effets personnels (poêle et réfrigérateur à voir)
Particularités du bâtiment :
- Style: Maison détachée
- Allée: Asphalte, Double largeur ou plus
- Eau (accès): Accès, Bordé par l'eau, Non navigable
- Équipement disponible: Spa, Échangeur d'air, Ouvre-porte électrique (garage)
- Fondation: Béton coulé
- Foyer: Oui
- Foyer-Poêle: Foyer au bois
- Garage: Attaché, Double largeur ou plus
- Proximité: Autoroute, Garderie/CPE, Parc, Piste cyclable, École primaire, École secondaire, Transport en commun
- Rénovations: Couverture
- Revêtement de la toiture: Bardeaux d'asphalte
- Sous-sol: 6 pieds et plus, Totalement aménagé
- Stationnement: Oui
- Terrain: Boisé
- Vue: Sur l'eau
- Mode de chauffage: Plinthes électriques
- Énergie pour le chauffage: Électricité
- Approvisionnement en eau: Puits artésien
- Système d'égouts: Champ d'épuration, Fosse septique
Taxes:
- Taxes municipales: 2 575 $
- Taxe scolaire: 471 $
- Taxes annuelles totales: 3 046 $
Property Assessemnt:
- Évaluation du terrain: 190 900 $
- Évaluation de l'immeuble: 386 900 $
- Évaluation totale: 577 800 $
Caractéristiques :
- Bâti en: 1989
- Chambres : 3
- Dimensions du terrain : 94826.00 Pieds carrés
- Largeur du terrain en façade : 493.0 Pieds
- Profondeur du terrain : 381.0 Pieds
- Salle(s) de bains : 3
- Salle(s) d'eau : 1
- Superficie habitable (approx): 1808.0 Pieds carrés
- Zonage: RESI
- Nbre d'espaces de stationnement: 12
Détails des pièces :
- Solarium Rez-de-chaussée 4.42 m x 4.34 m 14.6 p x 14.3 p Plancher : Béton
- Salon Rez-de-chaussée 3.61 m x 5.61 m 11.10 p x 18.5 p Plancher : Plancher flottant Note: Foyer
- Salle à dîner Rez-de-chaussée 4.42 m x 4.11 m 14.6 p x 13.6 p Plancher : Plancher flottant
- Cuisine Rez-de-chaussée 5.54 m x 5.69 m 18.2 p x 18.8 p Plancher : Céramique Note: Chauffant
- Chambre Rez-de-chaussée 3.12 m x 3.76 m 10.3 p x 12.4 p Plancher : Plancher flottant
- Salle de bains Rez-de-chaussée 3.15 m x 2.36 m 10.4 p x 7.9 p Plancher : Céramique
- Salle de lavage Rez-de-chaussée 3.25 m x 2.11 m 10.8 p x 6.11 p Plancher : Céramique
- Salle d'eau Rez-de-chaussée 1.42 m x 2.13 m 4.8 p x 7.0 p Plancher : Céramique
- Hall d'entrée Rez-de-chaussée 2.36 m x 1.32 m 7.9 p x 4.4 p Plancher : Linoléum
- Chambre principale 2e niveau 3.17 m x 6.32 m 10.5 p x 20.9 p Plancher : Bois
- Salle de bains - Irrégulier 2e niveau 3.48 m x 3.58 m 11.5 p x 11.9 p Plancher : Céramique
- Chambre - Irrégulier 2e niveau 3.00 m x 4.85 m 9.10 p x 15.11 p Plancher : Plancher flottant
- Penderie (Walk-in) 2e niveau 3.00 m x 1.35 m 9.10 p x 4.5 p Plancher : Plancher flottant
- Autre Couloir 2e niveau 2.39 m x 1.32 m 7.10 p x 4.4 p Plancher : Plancher flottant
- Salle familiale - Irrégulier Sous-sol 5.36 m x 4.90 m 17.7 p x 16.1 p Plancher : Tapis
- Salle familiale Sous-sol 4.24 m x 2.84 m 13.11 p x 9.4 p Plancher : Tapis
- Salle de bains Sous-sol 2.39 m x 1.70 m 7.10 p x 5.7 p Plancher : Céramique
- Rangement Sous-sol 3.71 m x 5.74 m 12.2 p x 18.10 p Plancher : Béton
- Rangement Sous-sol 2.95 m x 3.94 m 9.8 p x 12.11 p Plancher : Tapis
- Rangement Sous-sol 2.92 m x 4.29 m 9.7 p x 14.1 p Plancher : Tapis
- Autre Couloir Sous-sol 2.82 m x 1.09 m 9.3 p x 3.7 p Plancher : Tapis
- Autre Couloir Sous-sol 2.29 m x 1.55 m 7.6 p x 5.1 p Plancher : Tapis
Convertir la mesure en :
Données fournies par : Centris - 600 Ch Du Golf, Ile -Des -Soeurs, Québec H3E 1A8
Nous croyons que tous les renseignements affichés sont exacts, mais nous ne le garantissons pas; les renseignements devraient être vérifiés de façon indépendante. Aucune garantie ou représentation de quelque nature que ce soit n’est offerte. Droits© 2021 Tous les droits sont réservés.
Tendances des prix du marché immobilier
Emplacement de 11505 Ch. de la Rivière-du-Nord, Mirabel, QC, J7N 1M1
Données démographiques de 11505 Ch. de la Rivière-du-Nord, Mirabel, QC, J7N 1M1
Étape de vie
Familles grandissantesType d'emploi
MixteRevenu moyen du ménage
134 274.68 $Nombre moyen d'enfants
1,90Population à domicile
Structure à domicile
Âge de la population
Éducation
Niveau d'éducation
No certificate/diploma/degree
16.11 %Diplôme d'études secondaires ou équivalent
24.65 %Certificat ou diplôme d'apprentissage ou d'une école de métiers
22.35 %Diplôme d'études collégiales ou d'études postsecondaires (non universitaires)
19.39 %Certificat d'études universitaires
2.1 %Diplômes d'études universitaires
15.4 %Navetteur
Se rendre au travail
En auto
97.78 %En transport en commun
0.43 %À pied
0.96 %À bicyclette
0.0 %Par tout autre moyen
0.83 %Diversité Culturelle
Connaissance des langues officielles
Langue maternelle
Données Sur Le Bâtiment
Type de bâtiment
Appartements (faible hauteur et à étages multiples)
33.28 %Maisons
66.72 %








































































































































































