Laval (Fabreville) QC, H7P 1P8
Remarques :
PISCINE INTERIEURE---- Maison d'exception à vendre -- Luxe, modernité et confort absolu Découvrez cette résidence spectaculaire alliant design contemporain, élégance et fonctionnalité. Offrant cinq chambres spacieuses et cinq salles de bain complètes, cette maison a été entièrement rénovée avec des matériaux haut de gamme et une attention minutieuse aux détails. Profitez d'un espace de vie lumineux et ouvert, parfait pour recevoir famille et amis.
PISCINE INTÉRIEURE
Maison de prestige à Laval -- Luxe, confort et élégance moderne
Découvrez cette résidence exceptionnelle située à Laval, alliant design contemporain, matériaux de qualité et confort absolu.
Cette maison de prestige offre 5 chambres à coucher et 5 salles de bain, un espace de vie à aire ouverte baigné de lumière naturelle et une cuisine de rêve équipée d'électroménagers haut de gamme.
Plusieurs rénovations majeures ont été réalisées avec soin, mettant en valeur la modernité et la fonctionnalité de chaque pièce.
Les points forts de cette propriété :
Garage chauffé double largeur avec plateforme élévatrice -- idéal pour les passionnés d'automobiles
Piscine intérieure chauffée, inondée de lumière naturelle
Jardin zen soigneusement aménagé avec étang à poissons koi et grande terrasse pour se détendre
Matériaux nobles et finitions impeccables
Aire ouverte lumineuse et ambiance harmonieuse dans toute la maison
Une demeure rare sur le marché, combinant raffinement, technologie moderne et sérénité.
Une véritable oasis de luxe à Laval, parfaite pour une famille ou pour ceux qui recherchent un cadre de vie exclusif et apaisant.
Inclusions: Luminaires, BBQ/frigo à breuvages/évier Jackson Grills encastrés à l'extérieur, Table de salle à manger extérieure, gazebo, mobilier extérieur (divans), foyer extérieur en pierres, Jeu d'enfants extérieur, équipement de gym de marque Inspire, glissade de la piscine, statues en pierres du jardin, plateforme AutoStacker du garage (élévateur de véhicule), Lave-vaisselle Bosch, Micro-ondes Wolf, Cuisinière au propane Wolf, réfrigérateur Sub-Zero, crémaillère, frigos à vin (2), télé SDB des maitres
Particularités du bâtiment :
- Style: Maison détachée
- Abri d'auto: Détaché
- Air climatisé: Oui
- Appareils en location (mensuel): Réservoir au propane
- Dimensions : 73.0 x 53.0 Pieds
- Équipement disponible: Installation aspirateur central, Climatiseur central, Échangeur d'air, Ouvre-porte électrique (garage), Système d'alarme, Thermopompe centrale
- Foyer: Oui
- Foyer-Poêle: Foyer au bois
- Garage: Attaché, Chauffé, Double largeur ou plus
- Installation laveuse-sécheuse: deuxième
- Piscine: Oui
- Proximité: Autoroute, Garderie/CPE, École primaire, École secondaire, Transport en commun
- Revêtement de la toiture: Bardeaux d'asphalte
- Salle de bains: Salle de bains attenante à la CCP, Bidet, Baignoire à remous, Douche indépendante
- Sous-sol: 6 pieds et plus, Totalement aménagé
- Stationnement: Oui
- Type de fenestration: Manivelle (battant)
- Mode de chauffage: Air soufflé (pulsé)
- Énergie pour le chauffage: Électricité
- Approvisionnement en eau: Municipalité
- Système d'égouts: Municipalité
Taxes:
- Taxes municipales: 7 014 $
- Taxe scolaire: 826 $
- Taxes annuelles totales: 7 840 $
Property Assessemnt:
- Évaluation du terrain: 293 400 $
- Évaluation de l'immeuble: 944 700 $
- Évaluation totale: 1 238 100 $
Caractéristiques :
- Bâti en: 1962
- Chambres : 5+1
- Dimensions du terrain : 12000.00 Pieds carrés
- Irregular: Oui
- Largeur du terrain en façade : 120.0 Pieds
- Profondeur du terrain : 100.0 Pieds
- Salle(s) de bains : 4
- Salle(s) d'eau : 1
- Superficie habitable (approx): 4179.0 Pieds carrés
- Zonage: RESI
- Nbre d'espaces de stationnement: 3
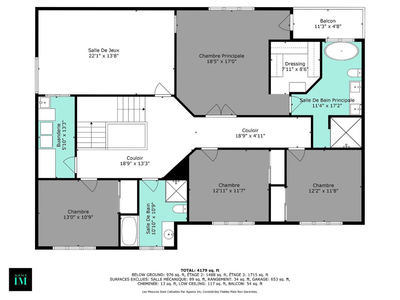
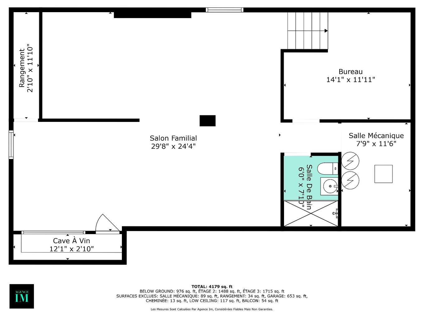
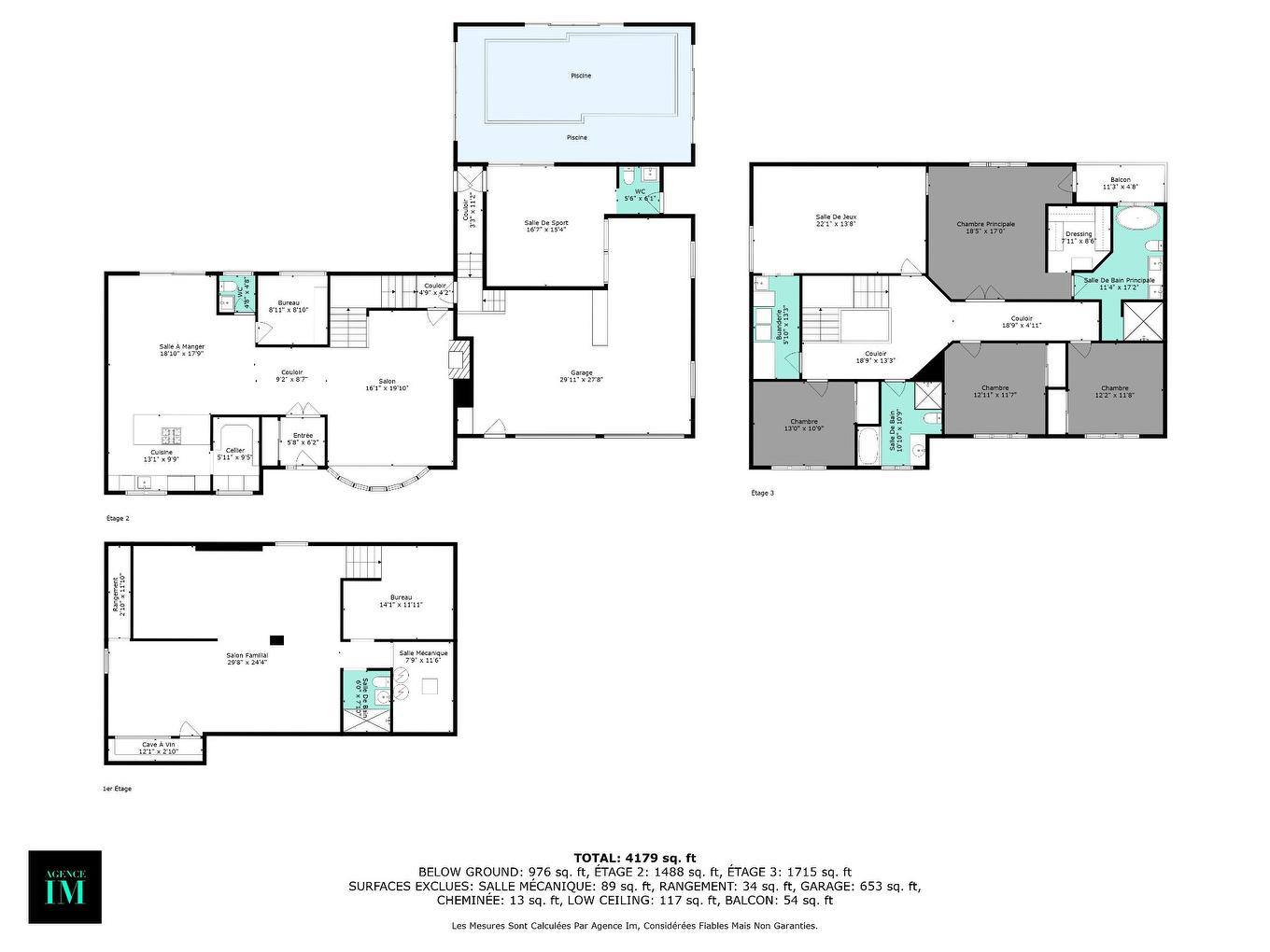
Détails des pièces :
- Hall d'entrée Rez-de-chaussée 1.88 m x 1.73 m 6.2 p x 5.8 p Plancher : Bois
- Salon Rez-de-chaussée 4.90 m x 5.82 m 16.1 p x 19.1 p Plancher : Bois
- Pièce de détente Rez-de-chaussée 2.79 m x 2.62 m 9.2 p x 8.7 p Plancher : Bois
- Salle à dîner - Irrégulier Rez-de-chaussée 5.51 m x 5.41 m 18.1 p x 17.9 p Plancher : Bois
- Cuisine Rez-de-chaussée 3.99 m x 2.97 m 13.1 p x 9.9 p Plancher : Bois
- Autre Garde-manger de service Rez-de-chaussée 2.87 m x 1.55 m 9.5 p x 5.1 p Plancher : Bois
- Salle d'eau Rez-de-chaussée 1.42 m x 1.42 m 4.8 p x 4.8 p Plancher : Céramique
- Bureau Rez-de-chaussée 2.46 m x 2.46 m 8.1 p x 8.1 p Plancher : Bois
- Autre Salle de sport - Irrégulier 5.05 m x 4.67 m 16.7 p x 15.4 p Plancher : Couvre-sols souples
- Salle de bains - Irrégulier 1.85 m x 1.68 m 6.1 p x 5.6 p Plancher : Couvre-sols souples
- Autre Piscine Intérieure 8.99 m x 5.23 m 29.6 p x 17.2 p Plancher : Autre - Bois de Teck
- Chambre principale - Irrégulier 2e niveau 5.61 m x 5.18 m 18.5 p x 17.0 p Plancher : Bois
- Penderie (Walk-in) - Irrégulier 2e niveau 2.59 m x 2.16 m 8.6 p x 7.1 p Plancher : Bois
- Salle de bains - Irrégulier 2e niveau 5.23 m x 3.45 m 17.2 p x 11.4 p Plancher : Céramique Note: Attenante
- Chambre 2e niveau 3.71 m x 3.56 m 12.2 p x 11.8 p Plancher : Bois
- Chambre 2e niveau 3.68 m x 3.53 m 12.1 p x 11.7 p Plancher : Bois
- Chambre 2e niveau 3.96 m x 3.28 m 13.0 p x 10.9 p Plancher : Bois
- Salle de bains - Irrégulier 2e niveau 3.28 m x 3.07 m 10.9 p x 10.1 p Plancher : Céramique
- Salle de lavage 2e niveau 4.04 m x 1.55 m 13.3 p x 5.1 p Plancher : Céramique
- Chambre 2e niveau 6.73 m x 4.17 m 22.1 p x 13.8 p Plancher : Bois Note: ou salle de jeux
- Salle familiale Sous-sol 9.04 m x 7.42 m 29.8 p x 24.4 p Plancher : Céramique
- Chambre - Irrégulier Sous-sol 4.29 m x 3.38 m 14.1 p x 11.1 p Plancher : Céramique
- Salle de bains Sous-sol 2.16 m x 1.83 m 7.1 p x 6.0 p Plancher : Céramique
- Cave à vin Sous-sol 3.68 m x 0.86 m 12.1 p x 2.10 p Plancher : Céramique
- Rangement Sous-sol 3.38 m x 0.86 m 11.1 p x 2.10 p Plancher : Céramique
Convertir la mesure en :
Données fournies par : Centris - 600 Ch Du Golf, Ile -Des -Soeurs, Québec H3E 1A8
Nous croyons que tous les renseignements affichés sont exacts, mais nous ne le garantissons pas; les renseignements devraient être vérifiés de façon indépendante. Aucune garantie ou représentation de quelque nature que ce soit n’est offerte. Droits© 2021 Tous les droits sont réservés.
Tendances des prix du marché immobilier
Emplacement de 3128 Rue Girouard, Laval (Fabreville), QC, H7P 1P8
Données démographiques de 3128 Rue Girouard, Laval (Fabreville), QC, H7P 1P8
Étape de vie
Familles avec parents dans la cinquantaineType d'emploi
Industrie des services/Cols blancsRevenu moyen du ménage
103 060.24 $Nombre moyen d'enfants
1,82Population à domicile
Structure à domicile
Âge de la population
Éducation
Niveau d'éducation
No certificate/diploma/degree
17.59 %Diplôme d'études secondaires ou équivalent
29.34 %Certificat ou diplôme d'apprentissage ou d'une école de métiers
17.14 %Diplôme d'études collégiales ou d'études postsecondaires (non universitaires)
20.14 %Certificat d'études universitaires
0.82 %Diplômes d'études universitaires
14.96 %Navetteur
Se rendre au travail
En auto
85.81 %En transport en commun
7.3 %À pied
1.97 %À bicyclette
0.01 %Par tout autre moyen
4.91 %Diversité Culturelle
Connaissance des langues officielles
Langue maternelle
Données Sur Le Bâtiment
Type de bâtiment
Appartements (faible hauteur et à étages multiples)
16.14 %Maisons
83.86 %






































































































































































