Kamloops BC, V2B 4Y8
Informations sur la propriété
Well appointed and beautifully updated 5 bed, 2 bath home on a large, flat corner lot in one of Kamloops’ most desirable family neighbourhoods. Close to schools, parks, and amenities, this property offers everyday comfort with future potential, including possible subdivision. The bright, open-concept main floor features a fully renovated kitchen with granite island, quality appliances, and stylish finishes. New laminate flooring, paint, baseboards, hardware, pot lighting, and mostly updated windows create a fresh, inviting feel. The updated main bath offers a jetted tub and subway tile. Large bonus room accessed from the patio from the kitchen could be perfect for a play room or extra storage. Downstairs is fully finished with two large bedrooms, an extended rec room (with well-window potential), and a deluxe laundry room. With newer drywall and flooring, the basement could easily convert to a 2 bedroom suite for extra income. 1 room offers flex/studio space with water and plumbing for home biz possibilities. Outside, enjoy a private, fully fenced and irrigated yard perfect for kids, pets, or future additions like a shop or pool. Extra parking (including RV), a storage shed, and a roof approx. 10 years old complete this exceptional property. A rare chance to secure a home that offers room to grow, space to create, and the flexibility to shape it around your family’s next chapter. All measurements approximate. (id:7525)
Particularités du bâtiment :
- Style: Maison détachée
- Type de bâtiment: Unifamiliale
- Air climatisé: Oui
- Matériau de toiture: Bardeaux d'asphalte
- Stationnement: Oui
- Style de toiture: Inconnu
- Surface utile: 2046 sqft
- Type d'architecture: Maison de plain-pied
- Type de construction: Isolée
- Type de chauffage: Air pulsé
- Type de climatisation: Climatisation centrale
- Électroménagers: Réfrigérateur, Lave-vaisselle, Cuisinière électrique, Micro-ondes
Caractéristiques :
- Type de possession: Tenure franche
- Type de propriété: Unifamiliale
- Bâti en: 1968
- Chambres : 5
- Salle(s) de bains : 2
- Superficie habitable (approx): 2046 Pieds carrés
- Service d'égout: Égout municipal
- Type de stationnement: VR
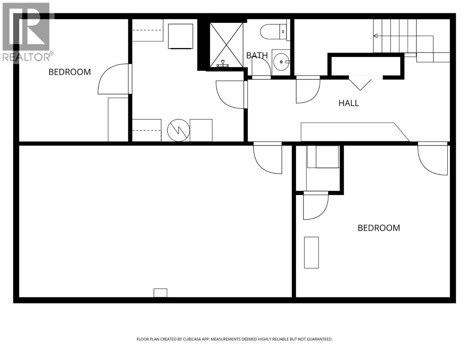
Détails des pièces :
- Chambre Sous-sol 10'10'' x 9'8''
- Salle de lavage Sous-sol 10'10'' x 9'10''
- Salle de divertissement Sous-sol 13'5'' x 24'1''
- Chambre Sous-sol 13'5'' x 13'7''
- Salle de bains Sous-sol 5'0'' x 7'1''
- Salle de bains Niveau rez-de-chaussée 8'8'' x 5'3''
- Chambre Niveau rez-de-chaussée 8'3'' x 9'0''
- Chambre Niveau rez-de-chaussée 11'11'' x 8'10''
- Chambre principale Niveau rez-de-chaussée 12'4'' x 10'10''
- Salle à dîner Niveau rez-de-chaussée 12'8'' x 9'6''
- Salon Niveau rez-de-chaussée 11'11'' x 19'9''
- Cuisine Niveau rez-de-chaussée 12'8'' x 12'11''
Tendances des prix du marché immobilier
Emplacement de 2275 Bonnie Place, Kamloops, British Columbia, V2B 4Y8
Données démographiques de 2275 Bonnie Place, Kamloops, British Columbia, V2B 4Y8
Étape de vie
Familles avec parents dans la cinquantaineType d'emploi
Industrie des services/Cols blancsRevenu moyen du ménage
105 319.71 $Nombre moyen d'enfants
1,63Population à domicile
Structure à domicile
Âge de la population
Éducation
Niveau d'éducation
No certificate/diploma/degree
18.74 %Diplôme d'études secondaires ou équivalent
37.24 %Certificat ou diplôme d'apprentissage ou d'une école de métiers
12.7 %Diplôme d'études collégiales ou d'études postsecondaires (non universitaires)
18.66 %Certificat d'études universitaires
0.02 %Diplômes d'études universitaires
12.63 %Navetteur
Se rendre au travail
En auto
92.39 %En transport en commun
3.06 %À pied
0.0 %À bicyclette
0.04 %Par tout autre moyen
4.51 %Diversité Culturelle
Connaissance des langues officielles
Langue maternelle
Données Sur Le Bâtiment
Type de bâtiment
Appartements (faible hauteur et à étages multiples)
3.12 %Maisons
96.88 %





























































