1138 Poley STREET, Regina, Saskatchewan, S4R 8H3
619 900 $No. MLS® SK024665
Maison À vendre à Hawkstone, Regina, Saskatchewan
6
Chambres
4
Salles de bain
-
3675.00 Pieds carrés
Dimension du terrain
Discover this custom built brand-new 2025 two-storey home in Hawkstone, offering 6 bedrooms, 4 bathrooms, and 2 full kitchens across 1,785 sq ft of thoughtfully designed living space. The main floor features a bright living room, modern kitchen, and one bedroom with a 3-pc bath. Upstairs, you’ll find a spacious bonus room, two secondary bedrooms, a full bath, and a private primary suite with its own 4-pc ensuite. The fully finished basement suite can provide additional income and includes kitchen, living room, laundry, two bedrooms, and a 3-pc bathroom. Buyers can take advantage of secondary suite incentive program if the possession is done before end of March 2026. Sitting on a large 3,675 sq ft lot with parking for two, this home is perfect for large families or those seeking multigenerational living. Located in Regina’s growing Hawkstone community, you’re close to parks, shopping, and everyday conveniences. (id:27)
Particularités du bâtiment :
- Style: Maison détachée
- Type de bâtiment: Unifamiliale
- État du sous-sol: Aménagé
- Stationnement: Oui
- Surface utile: 1785 sqft
- Type d'architecture: 2 étages
- Type de sous-sol: Sous-sol complet
- Combustible de chauffage: Gaz naturel
Caractéristiques :
- Type de possession: Tenure franche
- Type de propriété: Unifamiliale
- Bâti en: 2025
- Chambres : 6
- Dimensions du terrain : 3675.00 Pieds carrés
- Salle(s) de bains : 4
- Superficie habitable (approx): 1785 Pieds carrés
- Type de stationnement: Pas de stationnement, Places de stationnement
- Nbre d'espaces de stationnement: 2
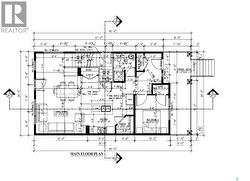
Détails des pièces :
- Chambre 2e niveau 3.10 m x 3.30 m 10.17 p x 10.83 p
- Chambre 2e niveau 3.10 m x 3.30 m 10.17 p x 10.83 p
- Chambre principale 2e niveau 4.27 m x 3.66 m 14.00 p x 12.00 p
- Autre 2e niveau 3.15 m x 2.74 m 10.33 p x 9.00 p
- Salle de lavage 2e niveau 1.32 m x 1.60 m 4.33 p x 5.25 p
- Salle de bains 2e niveau 2.64 m x 2.54 m 8.67 p x 8.33 p
- Salle de bains 2e niveau 2.79 m x 1.52 m 9.17 p x 5.00 p
- Cuisine Sous-sol 2.64 m x 3.25 m 8.67 p x 10.67 p
- Salon Sous-sol 3.35 m x 3.05 m 11.00 p x 10.00 p
- Salle de bains Sous-sol 2.59 m x 1.52 m 8.50 p x 5.00 p
- Chambre Sous-sol 3.86 m x 3.05 m 12.67 p x 10.00 p
- Chambre Sous-sol 2.64 m x 3.96 m 8.67 p x 13.00 p
- Salle de lavage Sous-sol 1.22 m x 1.52 m 4.00 p x 5.00 p
- Salon Niveau rez-de-chaussée 5.08 m x 4.37 m 16.67 p x 14.33 p
- Cuisine Niveau rez-de-chaussée 3.45 m x 3.86 m 11.33 p x 12.67 p
- Chambre Niveau rez-de-chaussée 3.35 m x 2.90 m 11.00 p x 9.50 p
- Salle de bains Niveau rez-de-chaussée 1.98 m x 1.88 m 6.50 p x 6.17 p
Gracieuseté de : eXp Realty
Le contenu des inscriptions fournies par REALTOR.ca a été autorisé par les membres de l'Association canadienne de l'immeuble.
Le contenu de cette inscription est fourni par REALTOR.ca et a été autorisé par les membres de l'Association canadienne de l'immeuble.
Photos supplémentaires


