1 990.00 $ /mois

Louer À louer à Mercier-Ouest / Longue-Pointe, Montréal (Mercier/Hochelaga-Maisonneuve), Québec

1 990.00 $ /mois
  • 2

    Chambres

  • 1

    Salles de bain

  • 810 p.c.

    SUPERFICIE HABITABLE

Remarques :

**4 1/2 disponible immédiatement** Condo haut de gamme à 2 min à pieds du métro Langelier. Deux chambres à coucher de belles dimensions. Un salon, salle à manger et cuisine à aire ouverte. Salle de bain avec double vasque et douche / bain séparés. Belle grande terrasse. Garage inclus.

Inclusions: Four, frigo, lave-vaisselle, laveuse, sécheuse, garage.

Exclusions : Électricité, internet.

Particularités du bâtiment :

  • Style: Appartement
  • Air climatisé: Oui
  • Commodités du bâtiment et espaces communs: Ascenseur
  • Équipement disponible: Climatiseur mural, Semi-meublé
  • Garage: Chauffé, Simple largeur
  • Installation laveuse-sécheuse: Salle de bains
  • Salle de bains: Douche indépendante
  • Stationnement: Oui
  • Mode de chauffage: Plinthes électriques
  • Énergie pour le chauffage: Électricité
  • Approvisionnement en eau: Municipalité
  • Système d'égouts: Municipalité

Caractéristiques :

  • Bâti en: 2023
  • Chambres : 2
  • Salle(s) de bains : 1
  • Superficie habitable (approx): 810.0 Pieds carrés
  • Nbre d'espaces de stationnement: 1

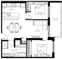
Détails des pièces :

  • Cuisine 3e niveau 3.81 m x 2.24 m
  • Salle à dîner 3e niveau 3.81 m x 3.45 m
  • Salon 3e niveau 3.66 m x 2.95 m
  • Chambre principale 3e niveau 3.35 m x 2.74 m
  • Chambre 3e niveau 2.79 m x 2.82 m
  • Salle de bains 3e niveau 3.94 m x 2.57 m

Gracieuseté de : Royal LePage Heritage

Données fournies par : Centris - 600 Ch Du Golf, Ile -Des -Soeurs, Québec H3E 1A8
Nous croyons que tous les renseignements affichés sont exacts, mais nous ne le garantissons pas; les renseignements devraient être vérifiés de façon indépendante. Aucune garantie ou représentation de quelque nature que ce soit n’est offerte. Droits© 2021 Tous les droits sont réservés.

  • Cuisine -
  • Cuisine -
  • Cuisine -
  • Salon -
  • Salon -
  • Chambre à coucher principale -
  • Chambre à coucher principale -
  • Chambre à coucher principale -
  • Chambre à coucher -
  • Chambre à coucher -
  • Salle de bains -
  • Salle de bains -
  • Salle de bains -
  • Salle de bains -
  • Salle de bains -
  • Terrasse -
  • Terrasse -
  • Plan (croquis) -