45 Glover Shore Road, Summerside, PE, C1N 4G4
445 000 $No. MLS® 202529239
Maison À vendre à Summerside, Île-du-Prince-Édouard
3
Chambres
2
Salles de bain
-
0.11
Dimension du terrain
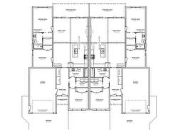
Modern style duplex located on a dead-end street just steps from the waterfront and close to all Summerside amenities. This property offers many features not commonly found in other duplex developments and includes modern finishes throughout. Each unit offers 1,450 square feet of finished living space with a 1.5 car garage, 3 bedrooms, and 2 full bathrooms. The primary bedroom includes a walk-in closet and an ensuite with a custom tiled shower. The large entryway features built-in lockers and tile flooring. Tile flooring is also featured in all bathrooms, with water-resistant laminate flooring throughout the remainder of the home. The main living area offers vaulted ceilings with wood beams, large patio doors with access to the back deck, an electric fireplace media wall, and an open concept kitchen, living, and dining layout. The kitchen will include a 7-foot wood-tone island to match the ceiling beams, pewter-colored cabinetry, black hardware, tile backsplash, and all new appliances. Front and rear pressure-treated decks are included. Construction features include an ICF foundation, roof shingles, vinyl siding, 200 amp electrical service, all electric heat plus one heat pump per unit, and a double-wide paved driveway. Exterior colors will be Sand and Linen with black windows and doors, and the garage door will feature windows. Each unit is situated on approximately 0.11 acres. Estimated completion is March 2026.
Caractéristiques :
- Taxes annuelles totales:
- Bâti en: 2025
- Caractéristiques: Échangeur d'air, Salle de bain attenante, Foyer électrique
- Caractéristiques Communautaires: Terrain de golf, Parc, Terrain de jeux, Transport en commun, Centre récréatif, Service d'autobus scolaire, Commerces à proximité
- Caractéristiques du terrain: Dégagé, Plat, Route praticable toute l'année
- Chambres : 3
- Dimensions du terrain : 0.11
- Documents au Dossier: Photos aériennes, Plan de l'étage
- Électroménagers Inclus: Cuisinière, Poêle, Lave-vaisselle, Sécheuse, Laveuse, Réfrigérateur
- Entrée de GarageéStationnement: Double, Pavé
- Évacuation des eaux d'égout: Municipal
- Finittion Extérieure: Vinyle
- Fondation: Béton isolé
- Matériel de location: Aucun
- Revêtement de Plancher: Stratifié, Carreaux
- Salle(s) de bains : 2
- Services: Câble, Électricité
- Source d'eau: Municipal
- Sous-sol: Aucun
- Structures: Terrasse
- Style du bâtiment: 1 niveau
- Superficie habitable (approx): 1450 Pieds carrés
- Taille de la propriété: Moins de 0,5 acre
- Titre d'un bien-fonds: Propriété franche
- Toit: Bardeaux d'asphalte
- Type de Carburant: Électrique
- Type de Chauffage/Refroidissement: Plinthe, Thermopompe - sans conduit
- Garage: Contigu, 1,5, Chauffé, Câblé
Détails des pièces :
- Chambre principale Rez-de-chaussé 14 x 11
- Salle de bain ensuite Rez-de-chaussé 9.6 x 5.6
- Autre Rez-de-chaussé 7 x 8
- Chambre Rez-de-chaussé 10.6 x 11
- Salle familiale Rez-de-chaussé 29 x 21
- Cuisine Rez-de-chaussé Combined
- Salle à dîner Rez-de-chaussé Combined
- Salle de bains Rez-de-chaussé 5.6 x 11
- Salle de lavage Rez-de-chaussé 5.6 x 7
- Chambre Rez-de-chaussé 10 x 11
- Autre Rez-de-chaussé Entry 16 x 7
Gracieuseté de : CENTURY 21 NORTHUMBERLAND REALTY
Données fournies par : Nova Scotia Association of REALTORS® 68 Highfield Park Drive, Bureau 112, Dartmouth, Nouvelle-Écosse B3A 0E4
Nous croyons que tous les renseignements affichés sont exacts, mais nous ne le garantissons pas; les renseignements devraient être vérifiés de façon indépendante. Aucune garantie ou représentation de quelque nature que ce soit n’est offerte. Droits © 2021 Tous les droits sont réservés.
Photos supplémentaires














