Maison À vendre à Islington Woods, Vaughan, Ontario
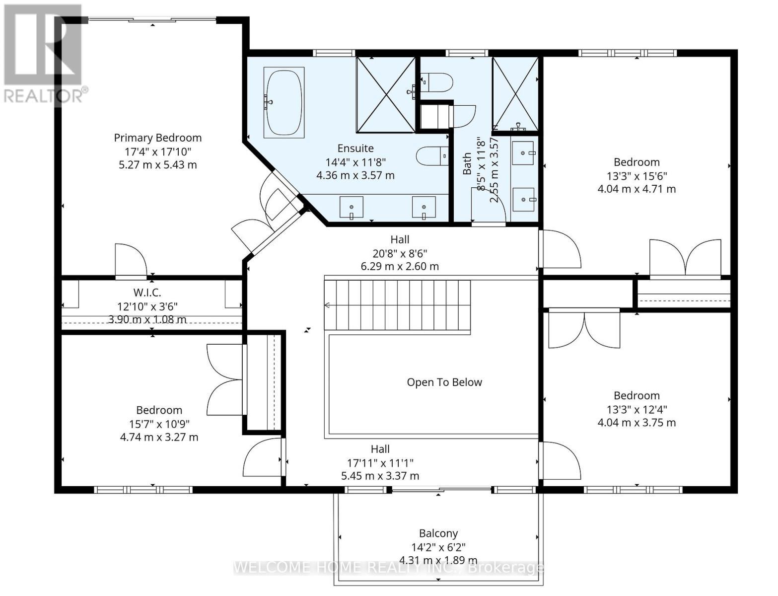
2 190 000 $ ÉvaluationExpressMC:4+1 Chambres
4 Salles de bain
-
Détails
-
Carte
-
Données démographiques
-
Vue de la rue
-
Itinéraire
-
Publicité
MULTIMEDIA

















































