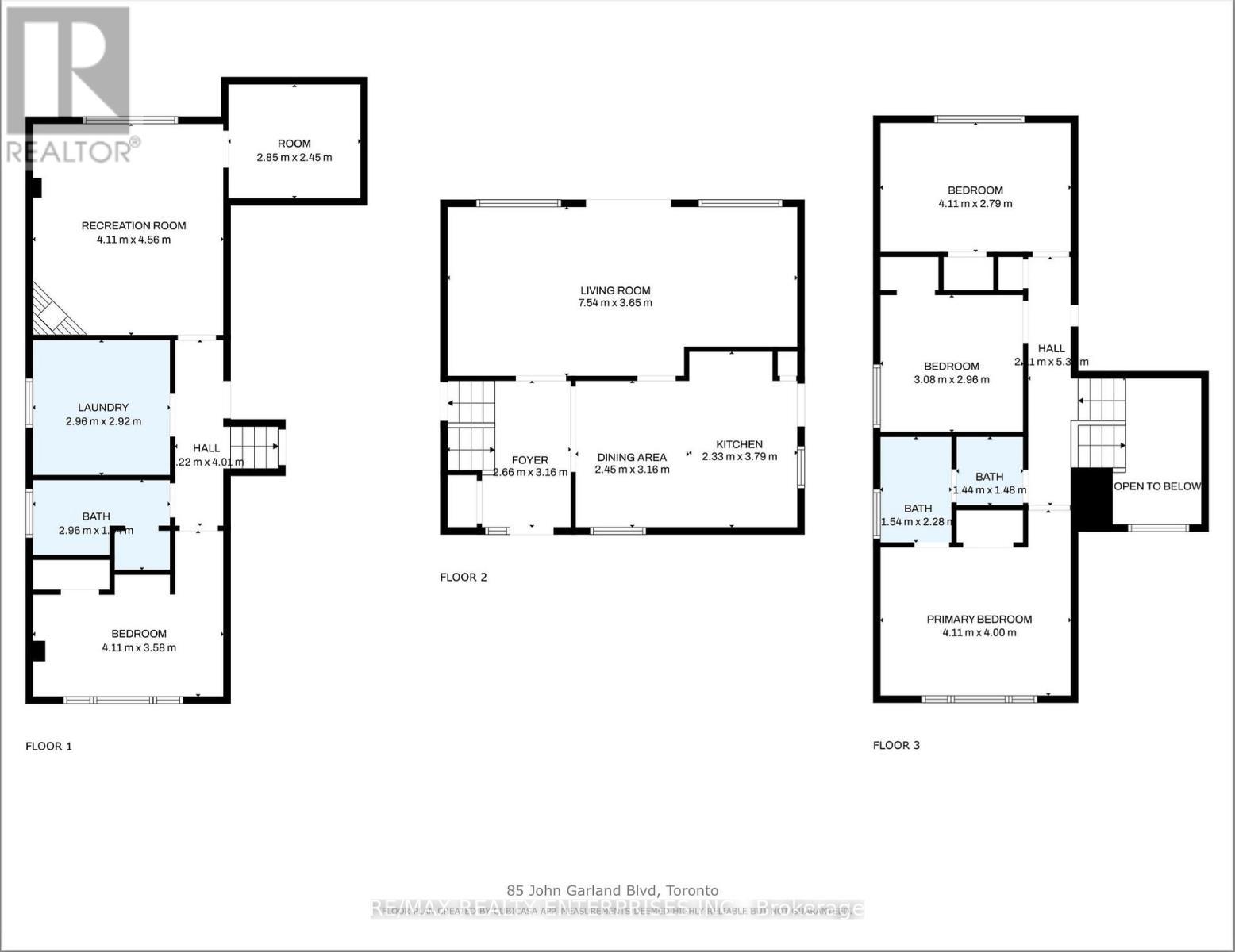
Maison À vendre à Entertainment District, Toronto, Ontario
899 000 $ ÉvaluationExpressMC: Non disponible3+1 Chambres
2 Salles de bain
-
Détails
-
Carte
-
Données démographiques
-
Vue de la rue
-
Itinéraire
-
Publicité
MULTIMEDIA
Ventes/Historique de prix
Se connecter ou créer un compte pour voir les inscriptions vendues et les historiques d'inscriptions

















































