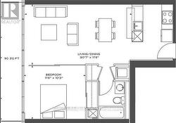
309 - 103 THE QUEENSWAY AVENUE N, Toronto, Ontario, M6S 5B3
2 300.00 $ /moisNo. MLS® W12639782
Le contenu de cette inscription est fourni par REALTOR.ca et a été autorisé par les membres de l'Association canadienne de l'immeuble.
Photos supplémentaires












