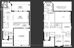
LOT 17 - 71 DEARING DRIVE, South Huron (Stephen), Ontario, N0M 1T0
1 075 000 $No. MLS® X12499060
Le contenu de cette inscription est fourni par REALTOR.ca et a été autorisé par les membres de l'Association canadienne de l'immeuble.
Photos supplémentaires






















