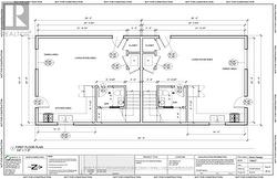
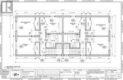
106 CHESTNUT STREET, Port Colborne (Killaly East), Ontario, L3K 1R6
119 900 $No. MLS® X12336787
Le contenu de cette inscription est fourni par REALTOR.ca et a été autorisé par les membres de l'Association canadienne de l'immeuble.
Photos supplémentaires




