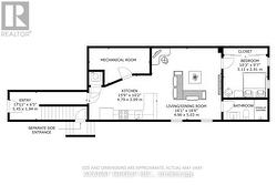
BASEMENT APT - 5463 FUDGE TERRACE, Mississauga, Ontario, L5M 0N1
1 800.00 $ /moisNo. MLS® W12549620
Le contenu de cette inscription est fourni par REALTOR.ca et a été autorisé par les membres de l'Association canadienne de l'immeuble.
Photos supplémentaires
































