Maison en rangée À vendre à Carling, London East (East A), Ontario
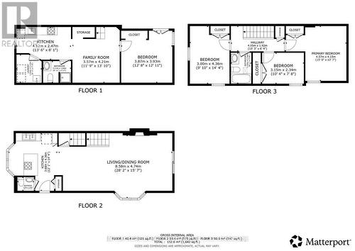
375 000 $ ÉvaluationExpressMC: Non disponible3 Chambres
3 Salles de bain
-
Détails
-
Carte
-
Données démographiques
-
Vue de la rue
-
Itinéraire
-
Publicité

























