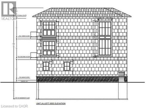
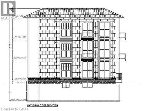
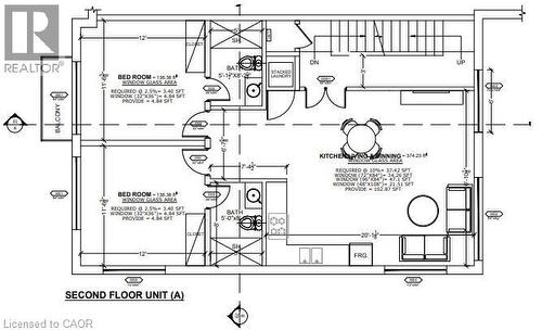
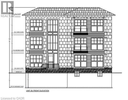
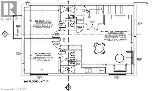
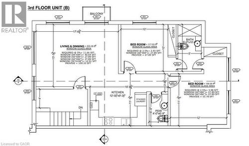
Terrain À vendre à Victoria Hills, Kitchener, Ontario
514 900 $None Chambres
-
Détails
-
Carte
-
Données démographiques
-
Vue de la rue
-
Itinéraire
-
Publicité



















