1001-206 King Street W, Hamilton, ON, L8P 1A5
3 100.00 $No. MLS® 40786689
Louer À louer à Central, Hamilton, Ontario
3
Chambres
3
Salles de bain
-
1020 p.c.
SUPERFICIE HABITABLE
Brand New Experience Urban Living At Radio Arts! This 3 Bed, 2 Bath Unit Faces E/S/W With 2 Balconies. Enjoy Amenities Like Co-work & Wi-fi Lounge, Penthouse Social Lounge With Fireplace & Rooftop Terraces With Bbq Area. Smart Home Features Include Smart Locks & Thermostats. Located Near Future Lrt, Transit, Shops, Restaurants & Highway 403. Perfect For Those Seeking A Modern, Connected Lifestyle In Downtown Hamilton's Vibrant Neighborhood. Parking & Locker Included.
Particularités du bâtiment :
- Stationnement: Oui
- Surface utile: 1020 Pieds carrés
Caractéristiques :
- Caractéristiques de la buanderie: Dans l'unité
- Caractéristiques du lot: Centre des arts, Hôpital, Transport en commun
- Chambres : 3
- Chauffage: Air pulsé
- Climatisation: Climatiseur central
- Commodités de l'association: Concierge, Salle d'exercice, Salle de réception, Terrasse
- Égouts: Autre
- Matériaux de construction: Brique
- Meublé: Non meublé
- Salle(s) de bains : 3+0
- Source d'eau: Aucun
- Stationnement de la voie d'accès: Aucun
- Style architectural: 1 étage
- Superficie habitable (approx): 1020 Pieds carrés
- Zonage: D2
- Nbre d'espaces de stationnement: 1
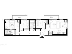
Détails des pièces :
- Salon Rez-de-chaussé 3.38 X 6.45
- Cuisine Rez-de-chaussé 2.01 X 4.01
- Salle à dîner Rez-de-chaussé 3.38 X 6.45
- Chambre Rez-de-chaussé 2.51 X 2.62
- Salle de bains Rez-de-chaussé
- Chambre Rez-de-chaussé 2.62 X 2.90
- Salle de bains Rez-de-chaussé
- Chambre principale Rez-de-chaussé 2.82 X 4.55
- Salle de bains Rez-de-chaussé
Gracieuseté de : Harlowe Realty Corporation
Le contenu des inscriptions fournies par REALTOR.ca a été autorisé par les membres de l'Association canadienne de l'immeuble.
Photos supplémentaires





