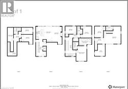
26 HURON Street, Grand Bend, Ontario, N0M 1T0
1 850 000 $No. MLS® 40791141
Le contenu de cette inscription est fourni par REALTOR.ca et a été autorisé par les membres de l'Association canadienne de l'immeuble.
Photos supplémentaires






































