Salesperson/REALTOR®
Royal LePage Locations North
, Courtage*
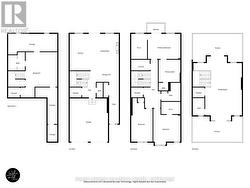
4 HURONIC COURT, Collingwood, Ontario, L9Y 5L6
2 649 000 $No. MLS® S12643936









































