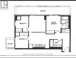
A606 - 3210 DAKOTA COMMON CIRCLE, Burlington, Ontario, L7M 2A8
2 900.00 $ /moisNo. MLS® W12553534
Le contenu de cette inscription est fourni par REALTOR.ca et a été autorisé par les membres de l'Association canadienne de l'immeuble.
Photos supplémentaires








































