Copropriété À vendre à Brant, Burlington, Ontario
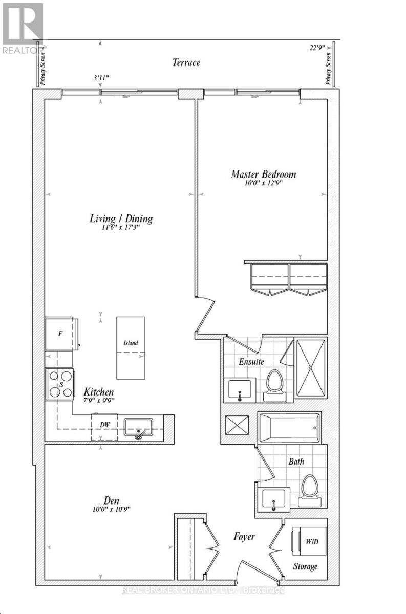
750 000 $ ÉvaluationExpressMC:1+1 Chambres
2 Salles de bain
-
Détails
-
Carte
-
Données démographiques
-
Vue de la rue
-
Itinéraire
-
Publicité












































