LOT 9 Klein Circle, Ancaster, ON, L9G 3K9
1 349 900 $No. MLS® XH4201672
Maison À vendre à Marritt, Ancaster, Ontario
1 349 900 $
4
Chambres
3
Salles de bain
-
6
Espaces de stationnement
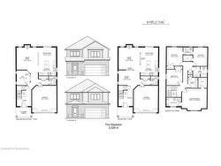
The Mapleton! Ancaster Executive! New home to be built! See LB for builders form + potential closing dates. Top quality, luxury spoke homes - loaded w/extras + quality. Nine foot ceilings, quartz or granite tops - oak stairs, pot lights. See appendix A for list of standard specs! Many additional upgrades available. - includes full Tarion Warranty.
Particularités du bâtiment :
- Stationnement: Oui
- Surface utile: 2526 Pieds carrés
Caractéristiques :
- Caractéristiques de la piscine: Aucun
- Caractéristiques du lot: Urbain, Rectangulaire
- Caractéristiques du stationnement: Garage mitoyen, Asphalte
- Chambres : 4
- Chauffage: Air pulsé, Gaz naturel
- Échelle d'acres: < 0,5
- Égouts: Égout (municipal)
- Largeur du terrain en façade : 13.72 Pieds
- Matériaux de construction: Brique
- Niveaux: Deux
- Profondeur du terrain : 31 Pieds
- Salle(s) de bains : 2+1
- Source d'eau: Municipal
- Sous-sol: Pleine grandeur, Non fini
- Style architectural: 2 étage
- Superficie habitable (approx): 2526 Pieds carrés
- Toiture: Bardeaux d'asphalte
- Type de structure: Détaché
- Zonage: R4-563
- Nbre d'espaces de stationnement: 6
Détails des pièces :
- Salle de bains 2e niveau
- Salle de bains Rez-de-chaussé
- Salle de lavage 2e niveau
- Salle de bains 2e niveau
Gracieuseté de : Michael St. Jean Realty Inc.
Le contenu des inscriptions fournies par REALTOR.ca a été autorisé par les membres de l'Association canadienne de l'immeuble.
Photos supplémentaires



