Lot 5102 514 Bondi Drive, Middle Sackville, NS, B4E 0P5
819 900 $No. MLS® 202525264
Maison À vendre à Middle Sackville, Nouvelle-Écosse
4
Chambres
4
Salles de bain
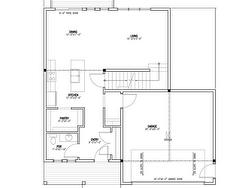
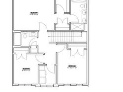
COME AND SEE US AT OUR MODEL HOME AT 242 Zaffre Drive EVERY SATURDAY & SUNDAY FROM 2-4 PM. You've been asking for it, and here it is! Amara Developments is proud to introduce "The Ponderosa" - a spacious 3+1 bedroom, 3.5 bathroom 2-STORY HOME to its repertoire of exceptional new construction homes in majestic Indigo Shores, Middle Sackville. This exciting and modern design offers a perfect blend of contemporary style and function in an exciting new phase of the community. With a bright and airy layout and over 2,500 square feet of finished living space, this home is designed for those seeking open-concept, three-level living and a thoughtful floor plan for a growing family. Step inside and experience contemporary living, featuring clean lines, abundant natural light, and luxurious fixtures characteristic of the Builder. The main level features a large living room and dedicated dining space that flow seamlessly into the chef’s kitchen with its abundance of full-height cabinetry, sit-up island, and full walk-in pantry—ideal for both everyday living and entertaining. A kindly tucked away powder room and 20x20 attached double garage complete this compelling floor. The upper level hosts a glorious primary bedroom with TWO large closets and a spa-like 5PC ensuite that will be the delight of its parents. Two more large bedrooms, an additional full bath, and a dedicated laundry room complete this level. Downstairs, won't feel so "down" with its robust recreation room for the kiddos, 4th bedroom, full bath, and ...what's this?! A bonus den/games or storage room that can serve a multitude of purposes. The oversized garage provides enough space for parking, tools, seasonal gear, or recreational equipment.
Caractéristiques :
- Chambres : 4
- Clause d'Échappatoire: 24 heures
- Évacuation des eaux d'égout: Fosse septique
- Finittion Extérieure: Revêtement d'aluminium, Acier, Pierre, Vinyle
- Fondation: Béton
- Matériel de location: Aucun
- Revêtement de Plancher: Céramique, Stratifié, Porcelaine
- Salle(s) de bains : 4
- Services: Câble, Électricité, Internet haute vitesse, Téléphone
- Source d'eau: Puits foré
- Sous-sol: Pleine grandeur, Entièrement fini
- Style du bâtiment: 2 étages
- Superficie habitable (approx): 2504 Pieds carrés
- Taille de la propriété: Entre 1 et 2,99 acres
- Titre d'un bien-fonds: Propriété franche
- Toit: Bardeaux d'asphalte
- Type de Carburant: Électrique
- Type de Chauffage/Refroidissement: Plinthe, Thermopompe - sans conduit
- Garage: Contigu
Détails des pièces :
- Hall d'entrée Rez-de-chaussé 9'2 x 7'2
- Salle de bains Rez-de-chaussé 7' x 5'10
- Cuisine Rez-de-chaussé 12' x 10'6
- Autre Rez-de-chaussé Pantry- 8'2 x 5'
- Salle à dîner Rez-de-chaussé 12' x 11'
- Salon Rez-de-chaussé 15' x 13'
- Autre Rez-de-chaussé Garage- 20' x 20'
- Chambre 2e niveau 11' x 12'10
- Chambre 2e niveau 9' x 11'2
- Chambre principale 2e niveau 15' x 13'
- Salle de bain ensuite 2e niveau N/A
- Salle de bains 2e niveau N/A
- Salle de divertissement Niveau inférieur 14'8 x 13'
- Salle de bains Niveau inférieur N/A
- Chambre Niveau inférieur 10'9 x 10'8
- Pièce de détente Niveau inférieur 10' x 12'9
- Pièce utilitaire Niveau inférieur 4'10 x 8'9
Gracieuseté de : Royal LePage Atlantic
Données fournies par : Nova Scotia Association of REALTORS® 68 Highfield Park Drive, Bureau 112, Dartmouth, Nouvelle-Écosse B3A 0E4
Nous croyons que tous les renseignements affichés sont exacts, mais nous ne le garantissons pas; les renseignements devraient être vérifiés de façon indépendante. Aucune garantie ou représentation de quelque nature que ce soit n’est offerte. Droits © 2021 Tous les droits sont réservés.



