GW001 4 Gardenia Way, Dartmouth, NS, B2X 0C7
964 900 $No. MLS® 202523927
Maison À vendre à Dartmouth, Nouvelle-Écosse
4
Chambres
4
Salles de bain
-
Oui
Foyer
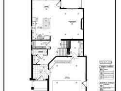
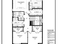
You asked for it, and Cresco has delivered! Introducing The Evergreen, a brand-new design debuting on Gardenia Way in The Parks of Lake Charles. This spacious 3,395 sq. ft. two-storey detached home offers four bedrooms, 3.5 bathrooms, a walkout basement, double car garage, and a generous walk-in pantry—perfect for those who value comfort, luxury, and functionality. With soaring 9’ ceilings on both the main and lower levels, abundant natural light, and an open, grand layout, this home feels airy and inviting. Each bedroom includes a walk-in closet, and the upstairs laundry room features a sink, counters, cabinetry, and a linen closet, with both upstairs bathrooms offering double sinks. Comfort is ensured with a fully ducted natural gas heat pump system and gas rough-ins for stove and barbecue. This model has a finished lower level with rec room and additional bedroom; however, The Evergreen can feature a fully self-contained legal suite, ideal for multigenerational living or rental income, as well as an unfinished lower level that allows you to customize the space to fit your needs. The Evergreen is built to meet you where you are and grow with you every step of the way.
Caractéristiques :
- Caractéristiques: Salle de bain attenante, Ventilateur-récupérateur de chaleur, Foyer électrique
- Caractéristiques Communautaires: Parc, Terrain de jeux, Transport en commun, Centre récréatif, Service d'autobus scolaire, Commerces à proximité
- Caractéristiques du terrain: Aménagement paysager
- Chambres : 4
- Documents au Dossier: Voir instr. aux membres
- Électroménagers Inclus: Aucun
- Entrée de GarageéStationnement: Double, Pavé
- Évacuation des eaux d'égout: Municipal
- Finittion Extérieure: Acier, Pierre, Vinyle
- Fondation: Béton
- Matériel de location: Aucun
- Revêtement de Plancher: Bois franc d'ingénierie, Stratifié, Porcelaine
- Salle(s) de bains : 4
- Services: Câble, Électricité, Internet haute vitesse, Gaz naturel, Téléphone
- Source d'eau: Municipal
- Sous-sol: Entièrement fini, Entrée directe
- Structures: Terrasse
- Style du bâtiment: 2 étages
- Superficie habitable (approx): 3395 Pieds carrés
- Taille de la propriété: Moins de 0,5 acre
- Titre d'un bien-fonds: Propriété franche
- Toit: Bardeaux d'asphalte
- Type de Carburant: Électrique, Gaz naturel
- Type de Chauffage/Refroidissement: Thermopompe - avec conduit
- Garage: Double, Attenant, Chauffé, Câblé
Détails des pièces :
- Hall d'entrée Rez-de-chaussé 7.1x8.7
- Salle de bains Rez-de-chaussé 2 Piece
- Salon Rez-de-chaussé 16.7x17.2
- Cuisine Rez-de-chaussé 11.4x12.3
- Salle à dîner Rez-de-chaussé 9.1x15.7
- Chambre principale 2e niveau 14.11x15.7
- Salle de bain ensuite 2e niveau 5 Piece
- Salle de lavage 2e niveau 5.3x10.5
- Salle de bains 2e niveau 4 Piece
- Chambre 2e niveau 11.9x14.4
- Chambre 2e niveau 13.1x14.8
- Salle de divertissement Niveau inférieur 15.6 x 16.7
- Chambre Niveau inférieur 11.3 x 14.9
- Salle de bains Niveau inférieur 4 Piece
Gracieuseté de : Royal LePage Atlantic
Données fournies par : Nova Scotia Association of REALTORS® 68 Highfield Park Drive, Bureau 112, Dartmouth, Nouvelle-Écosse B3A 0E4
Nous croyons que tous les renseignements affichés sont exacts, mais nous ne le garantissons pas; les renseignements devraient être vérifiés de façon indépendante. Aucune garantie ou représentation de quelque nature que ce soit n’est offerte. Droits © 2021 Tous les droits sont réservés.
Photos supplémentaires


