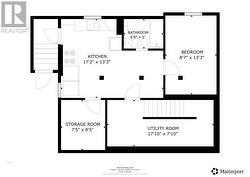
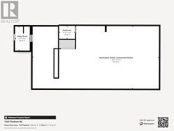
1519-1523 Thorburn Road, St. Philip's, Newfoundland & Labrador, A1M 1M9
369 900 $No. MLS® 1289194
Le contenu de cette inscription est fourni par REALTOR.ca et a été autorisé par les membres de l'Association canadienne de l'immeuble.
Photos supplémentaires








































