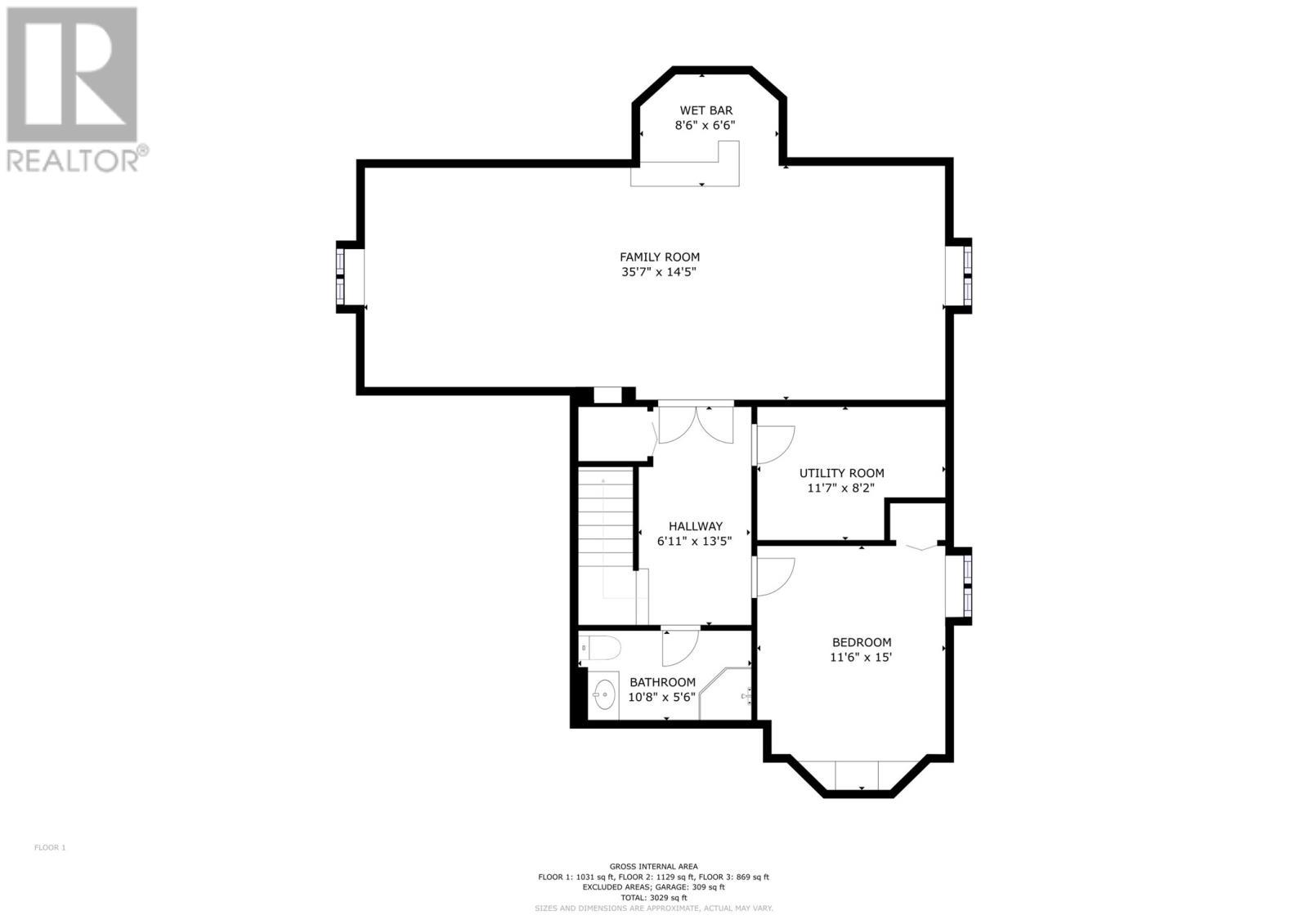
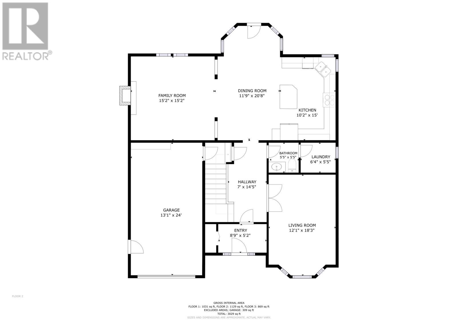
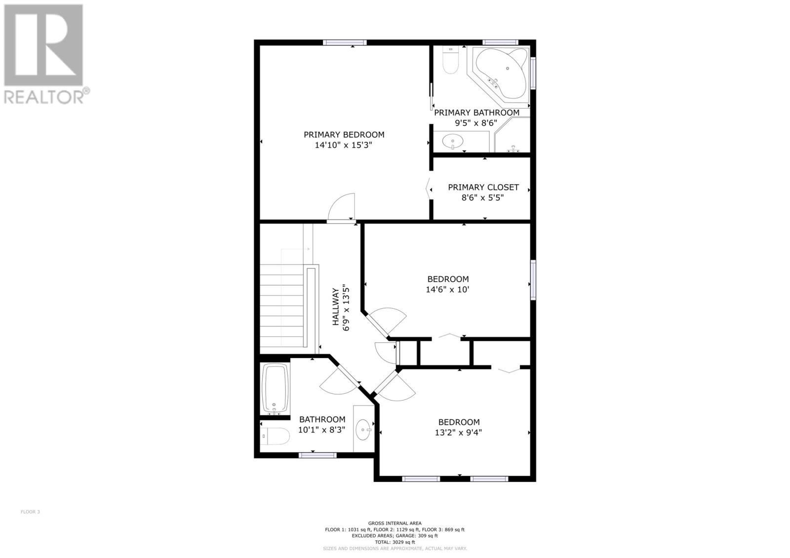
Maison À vendre à Southlands, St. John's, Terre-Neuve-et-Labrador
649 900 $ ÉvaluationExpressMC:3+1 Chambres
4 Salles de bain
-
Détails
-
Carte
-
Données démographiques
-
Vue de la rue
-
Itinéraire
-
Publicité































