60 Jack Pine Drive, Spaniard's Bay, Newfoundland & Labrador, A0A 3X1
729 000 $No. MLS® 1292764
Maison À vendre à Spaniard's Bay, Terre-Neuve-et-Labrador
729 000 $
3
Chambres
2
Salles de bain
-
104 x 285
Dimension du terrain
Remarques :
(id:27)
Particularités du bâtiment :
- Style: Maison détachée
- Type de bâtiment: Unifamiliale
- Air climatisé: Oui
- Fondation: Dalle en béton
- Revêtement extérieur: Brique, Bardage en vinyle
- Stationnement: Oui
- Surface utile: 1520 sqft
- Type d'architecture: Maison de plain-pied
- Type de construction: Isolée
- Type de plancher: Type de plancher
- Type de chauffage: Thermopompe
- Type de climatisation: Échangeur d'air
Caractéristiques :
- Type de possession: Tenure franche
- Type de propriété: Unifamiliale
- Accès: Accès par voie navigable, Accès toute l'année
- Bâti en: 2025
- Chambres : 3
- Dimensions du terrain : 104 x 285
- Irregular: Oui
- Salle(s) de bains : 2
- Services à proximité: Loisirs
- Superficie habitable (approx): 1520 Pieds carrés
- Zonage: Residential
- Service d'égout: Égout municipal
- Type de stationnement: Garage attenant
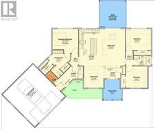
Détails des pièces :
- Salle de bains Niveau rez-de-chaussée 4PC
- Salle de bain ensuite Niveau rez-de-chaussée 4PC
- Chambre Niveau rez-de-chaussée 11.5 x 11.5
- Chambre Niveau rez-de-chaussée 12.11 x 10.10
- Salle de lavage Niveau rez-de-chaussée 14.3 x 7.0
- Chambre principale Niveau rez-de-chaussée 13.2 x 12.5
- Salon Niveau rez-de-chaussée 13.2 x 18.8
- Cuisine Niveau rez-de-chaussée 10.4 x 18.8
- Salle à dîner Niveau rez-de-chaussée 10.1 x 11.5
- Hall d'entrée Niveau rez-de-chaussée 11.5 x 6.7
Gracieuseté de : eXp Realty
Le contenu des inscriptions fournies par REALTOR.ca a été autorisé par les membres de l'Association canadienne de l'immeuble.
Le contenu de cette inscription est fourni par REALTOR.ca et a été autorisé par les membres de l'Association canadienne de l'immeuble.
Photos supplémentaires









