Lot 202 Foley's Crescent, Pouch Cove, Newfoundland & Labrador, A0A 3L0
408 900 $No. MLS® 1290554
Maison À vendre à Pouch Cove, Terre-Neuve-et-Labrador
408 900 $
3
Chambres
2
Salles de bain
-
1/2
Dimension du terrain
Remarques :
(id:27)
Particularités du bâtiment :
- Style: Maison détachée
- Type de bâtiment: Unifamiliale
- Fondation: Fondation en béton
- Revêtement extérieur: Bardeaux de bois, Bardage en vinyle
- Surface utile: 2244 sqft
- Type d'architecture: Maison de plain-pied
- Type de plancher: Plancher en stratifié
- Type de chauffage:
- Combustible de chauffage: Électrique
Caractéristiques :
- Type de possession: Tenure franche
- Type de propriété: Unifamiliale
- Bâti en: 2025
- Chambres : 3
- Dimensions du terrain : 1/2
- Irregular: Oui
- Salle(s) de bains : 2
- Superficie habitable (approx): 2244 Pieds carrés
- Zonage: res
- Service d'égout: Fosse septique
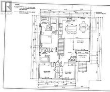
Détails des pièces :
- Salle de bain ensuite Niveau rez-de-chaussée 6 x 8
- Chambre principale Niveau rez-de-chaussée 11 x 10
- Chambre Niveau rez-de-chaussée 9 x 10
- Chambre Niveau rez-de-chaussée 9 x 10
- Salon Niveau rez-de-chaussée 16 x 10
- Cuisine Niveau rez-de-chaussée 19 x 11
Gracieuseté de : eXp Realty
Le contenu des inscriptions fournies par REALTOR.ca a été autorisé par les membres de l'Association canadienne de l'immeuble.
Le contenu de cette inscription est fourni par REALTOR.ca et a été autorisé par les membres de l'Association canadienne de l'immeuble.
Photos supplémentaires

