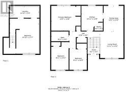
7 Aspenwood Place, Mount Pearl, Newfoundland & Labrador, A1K 3K7
415 000 $No. MLS® 1293140
Le contenu de cette inscription est fourni par REALTOR.ca et a été autorisé par les membres de l'Association canadienne de l'immeuble.
Photos supplémentaires







































