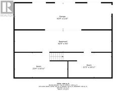
110 Southside Road, Bay Bulls, Newfoundland & Labrador, A0A 1C0
655 000 $No. MLS® 1291870
Le contenu de cette inscription est fourni par REALTOR.ca et a été autorisé par les membres de l'Association canadienne de l'immeuble.
Photos supplémentaires









































