6 Christine/Martin ST, Saint-Isidore, NB, E8M 0B3
219 900 $No. MLS® NB117910
Maison À vendre à Saint-Isidore, Nouveau-Brunswick
3
Chambres
1
Salle de bain
When Viewing This Property On Realtor.ca Please Click On The Multimedia or Virtual Tour Link For More Property Info.Be the first to move into this brand new, never-inhabited construction, model FB-12 Traditional from Supreme Homes. This mobile home offers 3 bedrooms, 1 full bathroom and an open concept with a living room, dining room and kitchen equipped with a central island, ideal for cooking and entertaining. Located in a new residential development in the heart of Saint-Isidore, it combines tranquility and proximity to services: school, grocery store, restaurants, trails and more. Just minutes from Tracadie, it is the perfect place for a family or a comfortable retirement. A great opportunity to acquire a turnkey home in a dynamic community! **Note that the HST is included in the sales price.
Particularités du bâtiment :
- Air climatisé: Oui
- Superficie totale aménagée: 1024 Pieds carrés
- Surface utile: 1024 Pieds carrés
Caractéristiques :
- Bâti en: 2023
- Caractéristiques intérieures: Échangeur d'air
- Caractéristiques terrestres: Aménagement paysager
- Chambres : 3+0
- Chauffage / climatisation: Air sans conduit, Plinthes, Électrique, Thermopompe sans conduit
- Dimensions de la propriété: Moins de 0,5 acre
- Entrée: Gravier, Double
- Extérieur: Vinyle
- Fondation / sous-sol: Blocs, Béton
- Revêtements de sol: Stratifié, Vinyle
- Salle(s) de bains : 1+0
- Style de propriété: 1 niveaux, Mini, Mobile
- Superficie habitable (approx): 1024 Pieds carrés
- Titre darrivée: Propriété franche
- Toiture: Bardeaux d'asphalte
- Eau: Puits foré, Puits
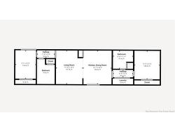
Détails des pièces :
- Cuisine Rez-de-chaussé 4.50 m x 3.84 m 14'9" p x 12'7" p
- Salon Rez-de-chaussé 3.38 m x 4.50 m 11'1" p x 14'9" p
- Chambre Rez-de-chaussé 2.16 m x 2.57 m 7'1" p x 8'5" p
- Chambre Rez-de-chaussé 2.77 m x 3.86 m 9'1" p x 12'8" p
- Chambre Rez-de-chaussé 3.07 m x 3.86 m 10'1" p x 12'8" p
- Salle de bains Rez-de-chaussé 2.72 m x 2.41 m 8'11" p x 7'11" p
Gracieuseté de : PG Direct Realty Ltd.
Données fournies par : Greater Moncton REALTORS® du Grand Moncton 541 Boul. Ste. George, Moncton, Nouveau-Brunswick E1E 2B6
Nous croyons que tous les renseignements affichés sont exacts, mais nous ne le garantissons pas; les renseignements devraient être vérifiés de façon indépendante. Aucune garantie ou représentation de quelque nature que ce soit n’est offerte. Droits © 2021 Tous les droits sont réservés.
Photos supplémentaires









