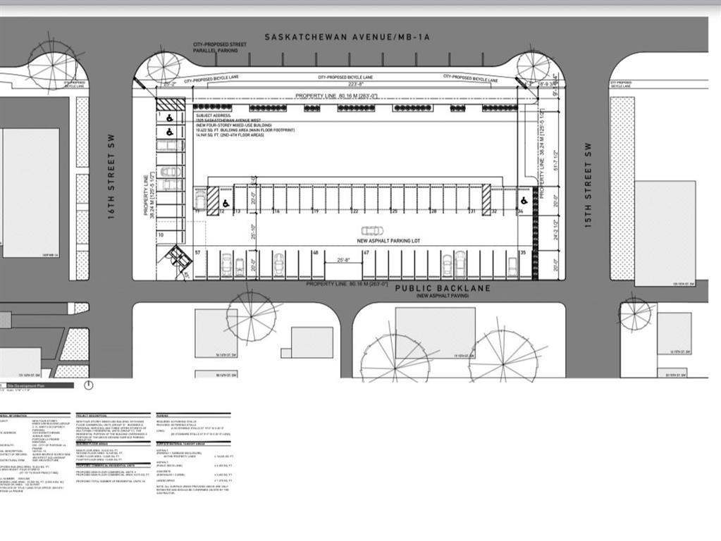
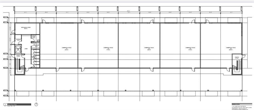
Commercial à vendre ou à louer à Portage La Prairie, Manitoba
1 $30.00 $ /pi. ca.
None Chambres
-
Détails
-
Carte
-
Données démographiques
-
Vue de la rue
-
Itinéraire
-
Publicité








