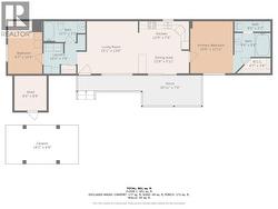
1750 Lenz Road Unit# 34, West Kelowna, British Columbia, V1Z 3N1
399 900 $No. MLS® 10363138
Le contenu de cette inscription est fourni par REALTOR.ca et a été autorisé par les membres de l'Association canadienne de l'immeuble.
Photos supplémentaires
















































