1 738 000 $

Maison À vendre à Vancouver, Colombie-Britannique

1 738 000 $
  • 5

    Chambres

  • 3

    Salles de bain

  • 4026.00 Pieds carrés

    Dimension du terrain

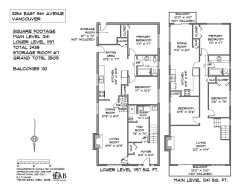
The property is a detached single-family home located at 3254 East 5th Avenue in East Vancouver. Originally built in 1934, it is a two-level house with a full lower-level two-bedroom suite and a 3-bedroom main floor, offering approximately 2,505 square feet of total living space. The home sits on a 4,026-square-foot lot with rear-lane access and a detached double garage. Finished with stucco and brick and topped by a tar-and-gravel roof, the house is in average overall condition with dated interior finishes. The property is located in the established Renfrew neighbourhood, a quiet residential area characterized by single-family homes, and sits directly across from Sunrise Park with convenient access to schools, transit, shopping, and major roadways. Thank You

Particularités du bâtiment :

  • Foyer: Oui
  • Stationnement: Oui
  • Surface utile: 2505 Pieds carrés

Caractéristiques :

  • Taxes annuelles totales: 8 864 $
  • Bâti en: 1934
  • Caractéristiques de buanderie: Dans l'unité
  • Caractéristiques de stationnement: Détaché, Accès arrière, Asphalte
  • Caractéristiques du foyer: Gaz, À bois
  • Caractéristiques du terrain: Emplacement central, Ceinture verte, Accès aux voies de circulation, Activités récréatives à proximité
  • Caractéristiques extérieures: Balcon, Cour privée
  • Chambres : 5
  • Chauffage: Eau chaude, Gaz naturel, Chaleur rayonnante
  • Dimensions du terrain : 4026.00 Pieds carrés
  • Largeur du terrain en façade : 33 Pieds
  • Niveaux: Deux
  • Salle(s) de bains : 2+1
  • Sous-sol: Pleine grandeur, Fini, Entrée extérieure
  • Style architectural: Entrée au sous-sol
  • Superficie habitable (approx): 2505 Pieds carrés
  • Type de structure: Résidence isolée
  • Type de surface de la route: Pavée
  • Nbre d'espaces de stationnement: 2

Gracieuseté de : RE/MAX LIFESTYLES REALTY

The data relating to real estate on this web site comes in part from the MLS® Reciprocity program of the Greater Vancouver REALTORS®, the Fraser Valley Real Estate Board or Chilliwack & District Real Estate Board. Real estate listings held by participating real estate firms are marked with the MLS® Reciprocity logo and detailed information about the listing includes the name of the listing agent. This representation is based in whole or part on data generated by the Greater Vancouver REALTORS®, the Fraser Valley Real Estate Board or Chilliwack & District Real Estate Board which assumes no responsibility for its accuracy. The materials contained on this page may not be reproduced without the express written consent of the Greater Vancouver REALTORS®, the Fraser Valley Real Estate Board or Chilliwack & District Real Estate Board.