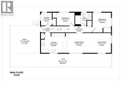
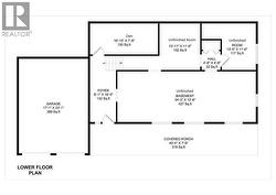
2227 Allshouse Road, Summit Lake, British Columbia, V0G 1R1
650 000 $No. MLS® 10364071
Le contenu de cette inscription est fourni par REALTOR.ca et a été autorisé par les membres de l'Association canadienne de l'immeuble.
Photos supplémentaires












































