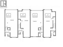
222 Temple Street Unit# 4, Sicamous, British Columbia, V0E 2V0
629 000 $No. MLS® 10358265
Le contenu de cette inscription est fourni par REALTOR.ca et a été autorisé par les membres de l'Association canadienne de l'immeuble.
Photos supplémentaires







































