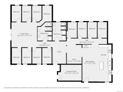
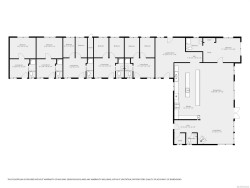
DL 1489 Jackson Bay, See Remarks, BC, V0P 1R0
1 345 000 $No. MLS® 924432
Personal Real Estate Corporation
Royal LePage Advance
*
Photos supplémentaires




































































